Obľúbený park prejde revitalizáciou. Pribudne tu bežecký okruh, miesto na pikniky a mnoho zelene
- Nitra patrí medzi obľúbené slovenské mestá a jej vedenie sa ju snaží zatraktívniť ešte viac
- Jeden z obľúbených parkov prejde výraznou revitalizáciou
- Nitra patrí medzi obľúbené slovenské mestá a jej vedenie sa ju snaží zatraktívniť ešte viac
- Jeden z obľúbených parkov prejde výraznou revitalizáciou
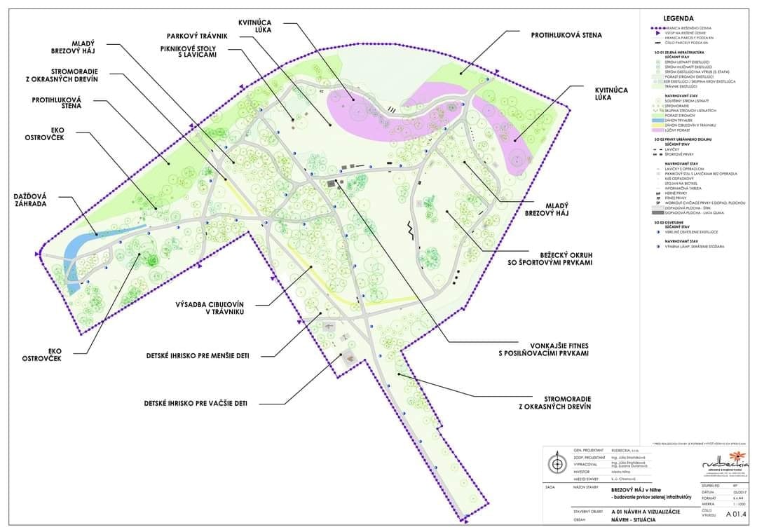
Revitalizáciami v súčasnosti neprechádzajú iba parky v Bratislave, ale aj verejné priestory v iných mestách. Obnovou si prejde napríklad známy nitriansky Brezový háj. Na svojom Facebooku o tom informoval primátor mesta Marek Hattas.
V obľúbenej oblasti by mali čoskoro pribudnúť lavičky, nové detské a športové ihrisko, a zároveň až 400 nových stromov. K rekonštrukcii dôjde predovšetkým kvôli výstavbe okolitých bytových komplexov Brezový háj a Living Park, no aj kvôli novootvorenému vysokoškolskému internátu.
https://www.facebook.com/100058098730352/posts/281276173819005/?d=n
Ako uvádza v príspevku Hattas, zámerom mesta je vybudovať z Brezového hája pod Zoborom atraktívny a najmä bezpečný lokálny park, ktorý bude slúžiť okolitým obyvateľov, deťom neďalekej základnej školy či študentom.
Dá sa predpokladať, že park si obľúbia aj aktívni Nitrania, ktorí radi športujú v exteriéri.
Pribudne množstvo zelene
V súčasnosti sa v Brezovom háji nachádza takmer 1 200 stromov, predovšetkým briez. Keďže ide o stromy, ktoré po nejakom čase potrebujú obnovu, nastal čas zmien. V dôsledku týchto zmien by mali z parku zmiznúť niektoré stromy, ktoré možno považovať za nebezpečné pre návštevníkov tejto oblasti.
„V rámci obnovy mesto vysadí takmer 400 nových stromov, necelých 3-tisíc trvaliek a 85-tisíc cibuľovín,“ vysvetľuje Hattas a dodáva, že v parku pribudnú aj dažďové záhrady na zadržiavanie vody a pestrofarebné kvitnúce lúky.
Verejná zeleň je v tejto dobe jednou z najväčších priorít mesta Nitra, o čom svedčia aj ďalšie projekty. Tie mesto realizuje v rámci Integrovaného regionálneho operačného programu. Revitalizáciou tak prejde nielen Brezový háj, ale aj Starý park a Borina.

„Ešte v roku 2017 si dala radnica vypracovať projektovú dokumentáciu na spomínané zelené projekty, ktoré prešli zložitým procesom posudzovania a následným verejným obstarávaním,“ dodáva Hattas.
Ako sme už spomínali, v parku okrem množstva zelene pribudnú aj pohybové možnosti. Mesto tu vybuduje sedem nových športových prvkov pre deti i dospelých a tiež bežecký okruh.
Za zmienku stojí aj nový mobiliár, pozostávajúci zo 14 lavičiek, troch piknikových zostáv, stojanov na bicykle a odpadkových košov. Renováciou prejde aj osvetlenie.

„V blízkosti areálu základnej školy vznikne nové detské ihrisko. Herné prvky budú určené pre deti od 2 do 14 rokov,“ uzatvára ambície mesta primátor Marek Hattas.
Čítaj viac z kategórie: Architektúra
Zdroj: Facebook