Polovičný dom, ktorý ti poskytne plnohodnotný komfort
- Kompaktný rodinný dom s netradične rezanou strechou.
- Kompaktný rodinný dom s netradične rezanou strechou.
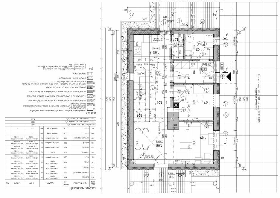
Nízky rozpočet, úzky pozemok a na ňom plnohodnotný štvorizbový rodinný dom. „The Half House“ je v tvare polovice domu so sedlovou strechou. Požiadavkou klienta bolo navrhnúť kompaktný dom, ktorý bude vykurovať fínska pec. Pozemok mal aj po výstavbe ostať priechodný autom. V neposlednom rade mal byť dom svetlý a vzdušný s otvorenými priestormi, výhľadmi na okolitú zeleň a s osobitým charakterom. Výsledkom je bývanie pre mladú štvorčlennú rodinu rodinu.
Novostavba rodinného domu sa nachádza v obci Lednické Rovne – Horenická Hôrka. Zásadnými krietériami, ktoré ovplivnili stavbu bol nízky rozpočet a úzky pozemok, ktorý mal zostať prejazdný až do záhrady.
Tvar domu vychádza z okolitej vidieckej zástavby so sedlovou strechou. “Typický rodinný dom sme akoby prepolili na polovicu a nadimenzovali štvorizbový byt s kuchyňou a komorou do domu,” hovorí architekt Ivana Lašan.
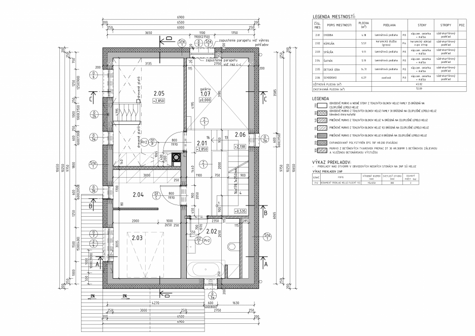
Half House má dve terasy. Na kuchyňu je napojená predná prekrytá terasa. Zadná terasa je orientovaná do záhrady.
Denná časť domu sa nachádza na prízemí. Obývačka, jedáleň, pracovňa a kuchyňa sú súčasťou jedného priestoru, na ktorý nadväzuje dominantné oceľové schodisko vedúce na poschodie. Pretože je obytný priestor otvorený cez obe podlažia, na vykúrenie domu stačí fínska pec. Centrálny priestor domu je vzdušný a svetlý.
V nočnej časti na poschodí sa nachádza spálňa pre rodičov so samostatným šatníkom, detská izba – kde v budúcnosti pribudne plató na spanie a spoločná kúpeľňa. Všetky okná izieb sú orientované na juhovýchodnú stranu. Bohatá zeleň ovocných stromov na susednom pozemku vytvára súkromie a tienenie počas letných horúcich dní.
Čítaj viac z kategórie: Architektúra















