Ateliér Coworking: Nový kreatívny coworking v Bratislave
- V Bratislave na Račianskej vznikol nový coworking.
- V Bratislave na Račianskej vznikol nový coworking.
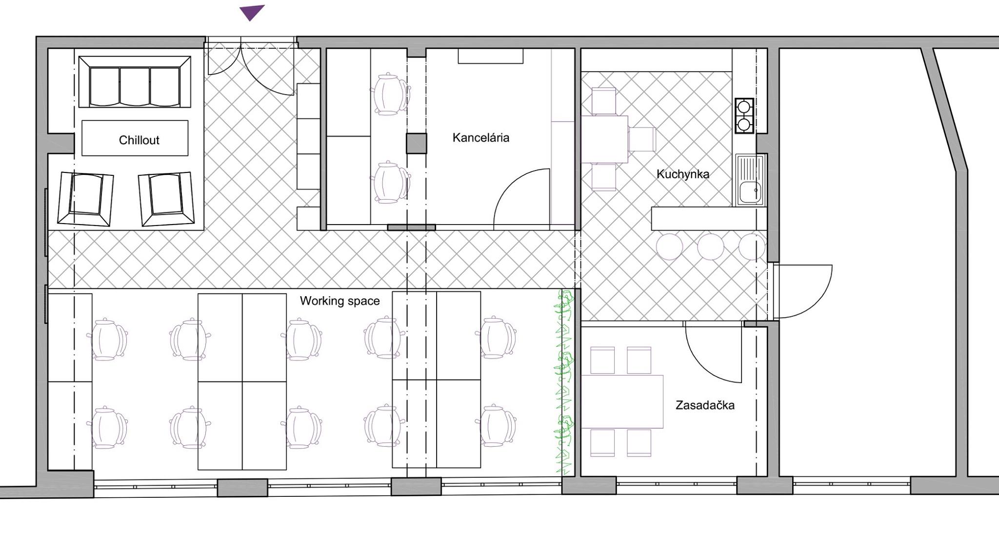
Ateliér coworking je nový priestor pre freelancerov v Bratislave. Nachádza sa na Račianskej 71 a nájdeš v ňom 8 pracovných miest.
Ateliér nie je pojatý ako klasický coworking s vysokou fluktuáciou ľudí. Tvorcovia projektu z neho chcú spraviť trvalú malú komunitu pozitívnych ľudí, ktorí sa do práce budú tešiť aj kvôli kolegom, s ktorými coworking zdieľajú.
Okrem pracovných staníc ponúka Ateliér coworking svojim členom aj kuchynku, zasadačku a chill out zónu so sedačkami.
Priestor je navrhnutý naozaj štýlovo a je vidno, že zakladateľom ide o vytvorenie priateľskej atmosféry.
Ak si freelancer a máš záujem o prácu z coworkingu, Ateliér je voľba, za ktorú sa určite nebudeš musieť hanbiť. Ak ťa Ateliér coworking zaujal, neváhaj im napísať správu – momentálne hľadajú nových členov.
zdroj titulnej fotografie: FB/Ateliér coworking, zdroj fotografií: FB/Ateliér coworking
Čítaj viac z kategórie: Zo Slovenska









