Aplikačné centrum BALUO v Olomouci je funkčné a moderné
- Špičkové výskumné a vzdelávacie centrum Univerzity Palackého. Nové budovy za 7,4 mil. € budú slúžiť univerzitnému aj komerčnému výskumu v oblasti kinantropólogie. Projekt vytvára aj priestor a zázemie pre vývoj a inovácie priemyselnej produkcie určenej pre podporu pohybovej aktivity.
- Špičkové výskumné a vzdelávacie centrum Univerzity Palackého. Nové budovy za 7,4 mil. € budú slúžiť univerzitnému aj komerčnému výskumu v oblasti kinantropólogie. Projekt vytvára aj priestor a zázemie pre vývoj a inovácie priemyselnej produkcie určenej pre podporu pohybovej aktivity.
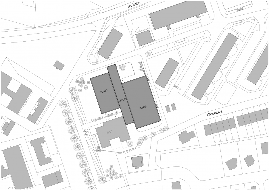
Stavba sa nachádza v zastavanej časti mesta Olomouc, v areáli Fakulty telesnej kultúry Univerzity Palackého. Na východe susedí pozemok s Olomouckým letiskom, zo západu s internátom, z juhu potom nadväzuje zástavba rodinných domov. Základnou funkčnou náplňou centra je výskum so športovo-medicínskym zameraním a výučba.
„Viac podobných článkov nájdeš na Archinfo.sk.“
Celý komplex sa skladá zo štyroch budov. Z dôvodu financovania bol rozdelený na dve samostatné investičné akcie. Prvou z nich je realizácia Aplikačného centra BALUO (Bases of Application Life Utilities Olomouc) v areáli Fakulty telesnej kultúry Univerzity Palackého v Olomouci, v rámci ktorej boli nedávno dokončené tri nové budovy. Druhou investičnou akciou je rekonštrukcia bývalej práčovne na Centrum kinantropologického výskumu, ktorá sa bude realizovať v nasledujúcich rokoch. Nový areál bude vo výsledku tvorený jednou zrekonštruovanou budovou a tromi novými objektmi, ktoré na ňu bezprostredne nadväzujú.
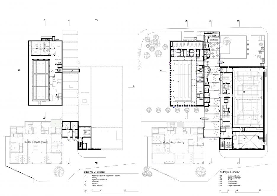
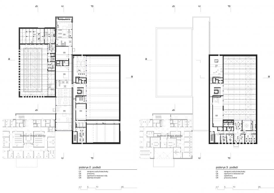
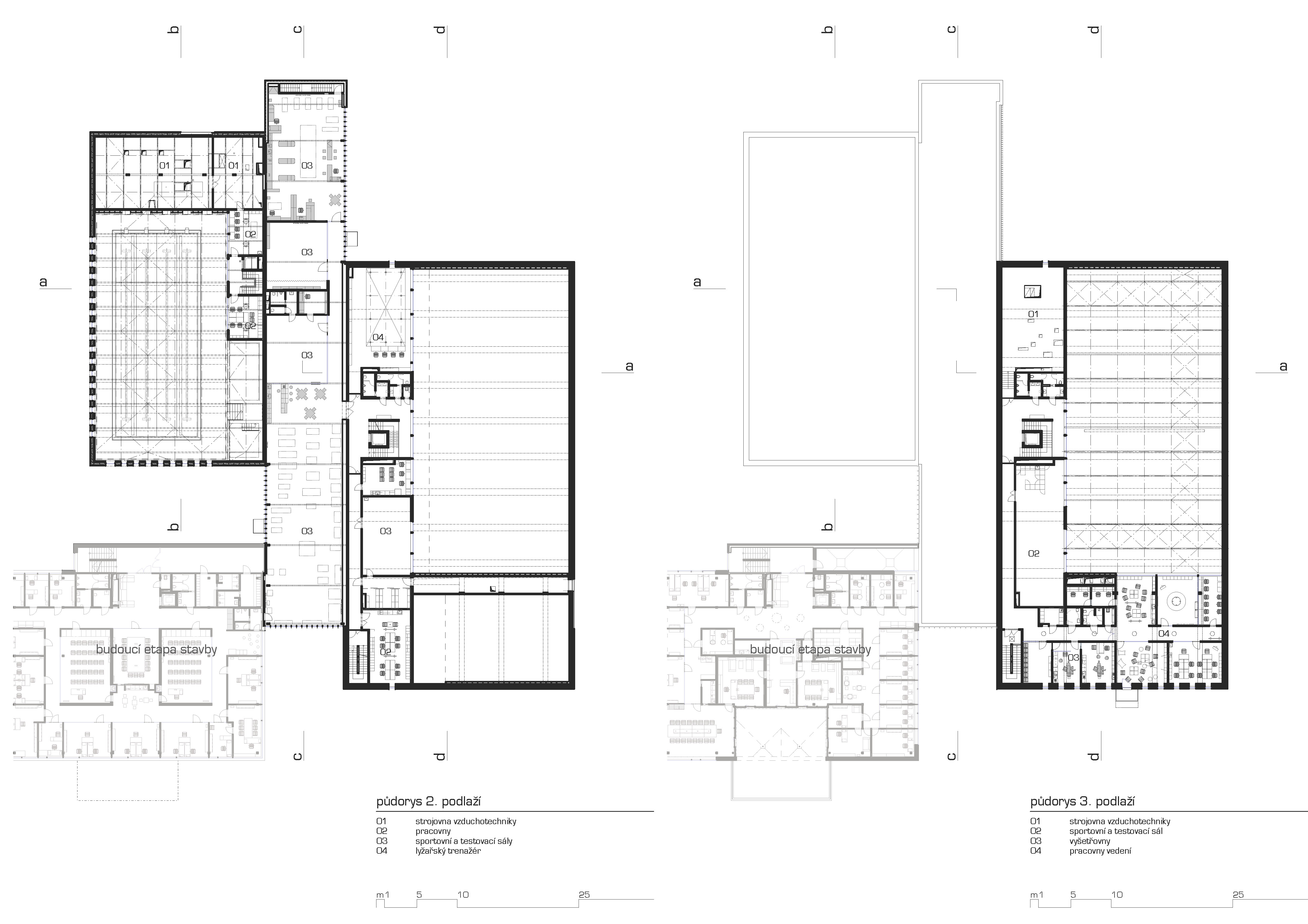
Prvou dokončenou časťou projektu je budova B (v pôdoryse označená ako SO.02) slúžiaca ako hlavný vstupný objekt do komplexu. Do tohto spojovacieho koridoru vedú dva vstupy z exteriéru, a to od existujúcich budov fakulty na východnej strane, a od nového parkoviska na západnej strane. Z interiéru sú potom prístupné objekty C (SO.03) a D (SO.04). V prízemí stavby sa na severnej strane nachádza bufet. Medzi vstupmi do objektov C a D je v organicky tvarovanej hmote, ktorá je obložená drevenými lamelami umiestnená recepcia s hygienickým zázemím. Zvyšný priestor slúži ako respírium. Druhé podlažie slúži pre športové aktivity užívateľov a je rozdelené ľahkými presklenými akustickými priečkami na 4 cvičebné sály. Miestnosti sú vybavené pre športy ako spinning alebo joga. V južnom konci traktu je umiestnený detský kútik. Presvetlenie je zaistené veľkoformátovými presklenými obvodovými stenami. Časť objektu je na južnej strane podpivničená. V týchto priestoroch je umiestnené technické zázemie objektu.
Na východnej strane na budovu B nadväzuje testovacia hala – budova C. Tá je tvorená predovšetkým priestrannou telocvičňou určenou na tréning loptových hier s využitím technológie, kde pomocou snímačov umiestnených na obvodových stenách je možné monitorovať pohyb každého športovca a analyzovať tak najrôznejšie parametre jeho pohybu. Vedľa hlavnej haly sa nachádza menšia testovacia gymnastická sála, ktorá je vybavená aj cvičnou lezeckou stenou. Pozdĺž veľkej haly je umiestnený trojpodlažný trakt s miestnosťami hygienického zázemia pre športovú halu na prízemí. Na vyšších poschodiach sú miestnosti prototypových dielní, testovacích laboratórií a výskumných pracovísk. Jedna z miestností musela byť navrhnutá s výškou cez dve bežné podlažia, aby tu bolo možné umiestniť cvičný lyžiarsky svah so syntetickým povrchom snowflex. Nad menšou testovacou halou je na treťom podlaží situované administratívne jadro pre správu objektov.
Na západnej strane spojovacieho koridoru budovy B je v logickej prevádzkovej nadväznosti umiestnená budova D s plaveckou časťou. Centrom objektu je hala, v ktorej je umiestnený veľký plavecký bazén s dĺžkou 25m a so štyrmi dráhami a dva menšie testovacie bazéniky. Jeden má funkciu plaveckého tunela a regulovateľným protiprúdom, druhý potom rekondičnú funkciu s vyššou teplotou a vzduchovými tryskami. Na tento priestor opäť nadväzujú miestnosti hygienického zázemia a šatní. V suteréne je umiestnené technické zariadenie objektu a skladové priestory pre plavecké pomôcky. Druhé podlažie sa rozkladá len na časti zastavanej plochy. Obsahuje strojovňu vzduchotechniky a dve miestnosti pre plaveckú školu a plavecké laboratórium, z ktorých je výhľad do bazénovej haly.
Konštrukčné riešenie
Všetky objekty sú z konštrukčného hľadiska riešené obdobne. Stavby sú založené na veľkopriemerových pilótach, ktoré sú v doplnené o základové pásy a základovú dosku. Nosné konštrukcie tvoria železobetónové monolitické steny a stropy, ktoré sú v mieste veľkých rozponov doplnené o oceľobetónové prievlaky a stĺpy. Zastrešenie hál na najvyšších poschodiach sú pri menších rozponoch tvorené železobetónovými doskami, pri veľkých rozponoch potom oceľovými priehradovými konštrukciami. Budovy sú od seba navzájom odilatované.
Architektonicko výtvarné riešenie
Budovy v areáli sú kompozične tvorené štyrmi jednoduchými kvádrami, ktoré svoju vnútornú náplň reflektujú svojimi hmotami. Z vonkajšej strany je vzájomná odlišnosť zdôraznená tiež materiálom použitým na opláštení. Ľahko čitateľná kompozíciu a plánovaná rozdielnosť zdôrazňuje jednotlivé špecifiká objektov a tiež prispieva k ľahšej orientácii v areáli.
Budova B je z veľkej časti uzavretá medzi budovami C a D, zvyšné fasády sú maximálne transparentné kvôli dostatku svetla v interiéri. Presklenie je členené na úzke vertikály, ktoré sú tienené predsadenými hliníkovými panelmi pre redukciu priameho oslnenia. Na severnej strane sú priestory so zázemím rozpoznateľné podľa súvislej červenej plochy na fasáde.
Objekt C tvorí betónový kváder testovacej haly. Obe kratšie fasády sú prerušené po celej výške objektu dvoma presklenými zvislými pásmi. Na južnej strane sú navyše doplnené radom úzkych okien, ktoré presvetľujú kancelárie. Na fasádach z pohľadového betónu sú navŕtané horolezecké chyty, ktoré na vybraných miestach tvoria tréningové lezecké cesty.
Hmota objektu D – plaveckej časti je rovnako ako testovacia hala svoju pozdĺžnou osou orientovaná paralelne s osou vstupného respíria. Pôdorysne rozľahlý priestor je presvetlený lineárnymi zvislými oknami, ktoré pocitovo dodávajú vnútornému priestoru potrebnú výšku. Fasáda je tvorená dreveným obkladom.
Interiér
Architekti snažili dosiahnuť kvalitné a funkčné riešenie. Na fasádach aj v interiéri sa vo veľkej miere opakujú zhodné materiály. Pohľadový betón je priznaný vo svojej surovej forme, drevo s minimálnou úpravou je preferované pred imitáciami. Presklené plochy fasády dopĺňajú obklady z mliečneho skla.
Podklady: atelier-r, zdroj: archinfo.sk
Čítaj viac z kategórie: Zaujímavosti
































