Košice: Dom s levanduľami je skvelým príkladom otvoreného priestoru

  • Jednopodlažný dom v rozsiahlej, mierne svahovitej parcele. Výborná komunikácia s okolitým terénom, čiastočné zapustenie do zeme (terén a strecha jedno sú...). Všetko na jednej úrovni - bezbariérové. Hranica medzi "dnu" a "von" je dynamická, dá sa hocikedy zrušiť, otvoriť, prepojiť. Dôležitejší, ako samotná architektonická forma, je kontakt s okolitou krajinou.
2-jj_dsc0048
  • Jednopodlažný dom v rozsiahlej, mierne svahovitej parcele. Výborná komunikácia s okolitým terénom, čiastočné zapustenie do zeme (terén a strecha jedno sú...). Všetko na jednej úrovni - bezbariérové. Hranica medzi "dnu" a "von" je dynamická, dá sa hocikedy zrušiť, otvoriť, prepojiť. Dôležitejší, ako samotná architektonická forma, je kontakt s okolitou krajinou.

Príklad, pre mnohých slovenských stavebníkov, ktorí sa uzatvárajú, izolujú od okolia. Myslia si, že dom musí byť pevnosťou. Múry, ploty a podlažia sú tým „serióznym nástrojom“, ktorý im zabezpečí ochranu a pocit domova.

Prezentované riešenie ukazuje aj iný pohľad. Že nie iba samotná forma objektu je dôležitá. Práve naopak. Stavba môže byť i triviálna, nenápadná. Tvorená iba obyčajnými pravouhlými plochami omieky, skla, výplní, kamennými múrikmi… Pomocou týchto nástrojov však šikovní architekti v tomto prípade prioritne formujú priestory, nie fasádu. Tie chránené pred počasím v interiéri, i tie okolo domu. Nielen v blízkych, ale i v ďalekých súvislostiach, viažúcich sa na krajinu a jej vnímanie.

„Viac podobných článkov nájdeš na Archinfo.sk.“

Priestory i zariadenie môžu byť voľne vymedzené. Poprepájané. Ak však koncept má „hlavu i pätu“, nápad a cit, tak výsledkom môže byť príjemné (i dobre fungujúce a podnetné) prostredie pre život rodiny (i ľudí v okolí). A najmä neničíme si živú prírodu okolo nás. Je to riešenie značne kontextuálne. A naviac v takomto dome nemáme obmedzený priestor. V priaznivých ročných obdobiach sa obytné priestory nielen dojmovo, ale aj funkčne môžu rozšíriť na celú plochu parcely. Nemusíme bývať iba „za múrmi“. Je to jedna z možných foriem k návratu k celodennému kontaktu so živou krajinou (čoraz zriedkavejší druh bývania).

Foto: P. Pekarčik

Slovo autorov:

Vertikálny objekt s malou zastavanou plochou, alebo horizontálny objekt s nízkou výškou – bola jedna zo zásadných otázok pri riešení konceptu návrhu. Konečným riešením je jednopodlažný objekt čiastočne zapustený v zemi so zelenou strechou, v podobe lúky alebo záhrady priamo napojenej na jestvujúci terén.

Foto: P. Pekarčik

Miera flexibility otvorených a uzavretých foriem, ich prienik, spojenie a oddeľovanie bolo priamo úmerné možným investičným nákladom. Jednopodlažná dispozícia umožňuje priame prepojenie priestorov voči okolitému prostrediu. Strecha je takmer celá súčasťou záhrady a tým podporuje zachovanie pôvodnej veľkosti zelenej plochy.

Foto: P. Pekarčik

Foto: P. Pekarčik

Foto: P. Pekarčik

Foto: P. Pekarčik

Foto: P. Pekarčik

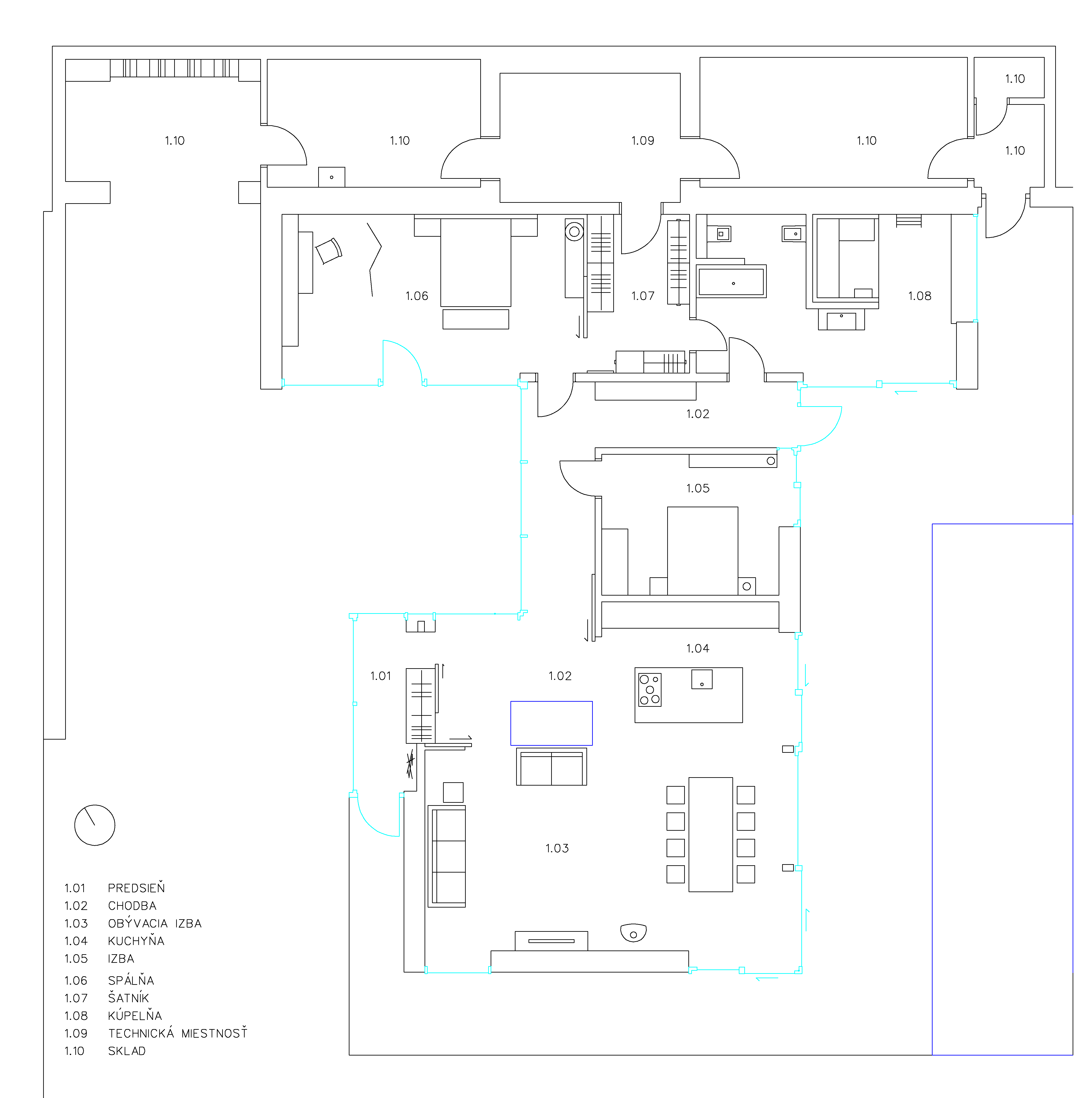
Pôdorys, (pozn. red.: na Slovensku málo vídaný otvorený typ dispozície s priamym transparentným kontaktom na okolie)

Pôdorys, (pozn. red.: na Slovensku málo vídaný otvorený typ dispozície s priamym transparentným kontaktom na okolie)Autori: Zuzana Skokanová a Jozef Skokan

Foto: P. Pekarčik

Foto: P. Pekarčik

Foto: P. Pekarčik

Foto: P. Pekarčik

Foto: P. Pekarčik

Foto: P. Pekarčik

Foto: P. Pekarčik

Foto: P. Pekarčik

Foto: P. Pekarčik

Foto: P. Pekarčik

Foto: P. Pekarčik

Foto: P. Pekarčik

Foto: P. Pekarčik

Foto: P. Pekarčik

Podklady: Zuzana Skokanová a Jozef Skokan, zdoj: archinfo.sk

ČLÁNOK POKRAČUJE POD REKLAMOU

Čítaj viac z kategórie: Architektúra

Najnovšie videá

Trendové videá