Preskočiť navigáciu
Startitup aktuálne spravodajstvo
  • PREMIUM
  • UP TV
  • Kategórie
    • PREMIUM
    • Biznis a startupy
    • Financie & Bývanie
    • Ekonomika
    • Politika
    • Názory a komentáre
    • Zahraničie
    • Gastro
    • Wellbeing
    • Hlavné správy a aktuality
    • Krimi
    • Rozhovory
    • Zo Slovenska
    • Food biznis
    • Šport
    • Inovácie a Eko
    • Architektúra
    • Cestovanie
    • Kvízy
    • Kultúra
    • Zo sveta
    • Zaujímavosti
    • Tlačové správy
Kúpiť PREMIUM
Kúpiť PREMIUM
  • PREMIUM
  • UP TV
  • PREMIUM
  • Biznis a startupy
  • Financie & Bývanie
  • Ekonomika
  • Politika
  • Názory a komentáre
  • Zahraničie
  • Gastro
  • Wellbeing
  • Hlavné správy a aktuality
  • Krimi
  • Rozhovory
  • Cestovanie
  • Šport
  • Eventy
  • Architektúra
  • Kultúra
  • Kvízy
  • Inovácie a eko
  • Zaujímavosti
  • Tlačové správy
  • Podcasty
  • Kontakt
  • Reklama
  • Cenník
  • Kariéra
Fontech Odzadu Yimba Interez Emefka
Startitup Group
Odporúčané
Answear mení módu
Answear mení módu na filmový zážitok: Nová kampaň SS26 je vizuálnou jazdou plnou emócií a pohybu
Lidl les rastie
Lidl les rastie už 15 rokov: V Tatrách pribudli ďalšie tisíce nových stromov
Šachový veľmajster Kasparov
Šachový veľmajster Kasparov otvorene: V Rusku sa nič nezmení. Tento zlom musí prísť skôr než pád Putina
Zo zákulisia politiky Rudolf Biermann
Celý národ hovorí o tom, že prezident je gay, on sa však nikdy neprizná, tvrdí Biermann
Často hľadané
Answear mení módu na filmový zážitok: Nová kampaň SS26 je vizuálnou jazdou plnou emócií a pohybu
Lidl les rastie už 15 rokov: V Tatrách pribudli ďalšie tisíce nových stromov
Šachový veľmajster Kasparov otvorene: V Rusku sa nič nezmení. Tento zlom musí prísť skôr než pád Putina
Celý národ hovorí o tom, že prezident je gay, on sa však nikdy neprizná, tvrdí Biermann
Zákon z čias Vietnamu ožíva: Senát sa postavil Trumpovi v otázke Iránu, hlasovali proti nemu aj vlastní
Výsledky vyhľadávania
Tagy
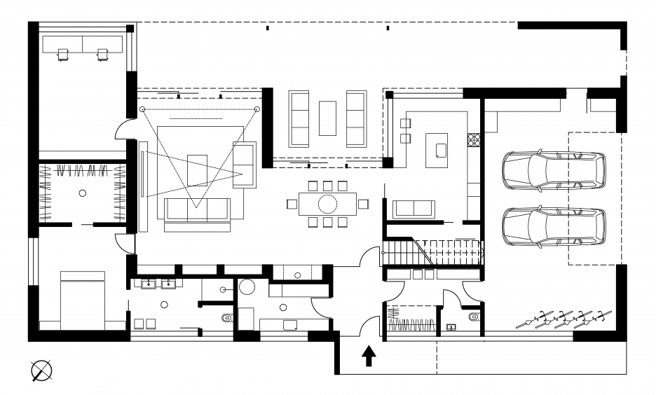
Táto vila, ktorú nájdeš na Slovensku, je zhmotnením funkčného a udržateľného bývania
zdroj: archinfo.sk
Logo
  • Kontakt
  • Inzercia
  • Cenník
  • O nás
  • Redakcia
  • Nahlásiť chybu
  • Kariéra
  • Spravovať notifikácie
  • Zrušiť predplatné
startitup group logo
Člen združenia IAB Slovakia
  • Startitup.sk
  • Fontech.sk
  • Odzadu.sk
  • Interez.sk
  • Emefka.sk
  • Receptik.sk
  • Femm.sk
Etický kódex SLOVENSKÝ OLYMPIJSKÝ A ŠPORTOVÝ VÝBOR
  • Podmienky používania
  • Podmienky ochrany súkromia
  • Nastavenia Cookies
  • Vyhlásenie o prístupnosti
  • Pravidlá používania súborov Cookies
  • VOP predplatného
  • Archív VOP predplatného
  • Reklamačný formulár
  • VOP reklamných služieb
  • Všeobecné podmienky súťaží
Startitup © 2026 All Rights Reserved.
startitup group logo
Člen združenia IAB Slovakia
  • Kontakt
  • Inzercia
  • Cenník
  • O nás
  • Redakcia
  • Nahlásiť chybu
  • Kariéra
  • Spravovať notifikácie
  • Zrušiť predplatné
  • Startitup.sk
  • Fontech.sk
  • Odzadu.sk
  • Interez.sk
  • Emefka.sk
  • Receptik.sk
  • Femm.sk
Etický kódex SLOVENSKÝ OLYMPIJSKÝ A ŠPORTOVÝ VÝBOR
  • Podmienky používania
  • Podmienky ochrany súkromia
  • Nastavenia Cookies
  • Vyhlásenie o prístupnosti
  • Pravidlá používania súborov Cookies
  • VOP predplatného
  • Archív VOP predplatného
  • Reklamačný formulár
  • VOP reklamných služieb
  • Všeobecné podmienky súťaží
Startitup © 2026 All Rights Reserved.
Startitup PREMIUM logo

Zakúpené články

Zatiaľ nemáš zakúpený žiadny článok