Človek a auto. Niekedy to je nerozlučná dvojica, čo sa v tomto prípade odráža aj na bývaní
- Špecifická symbióza ľudí a strojov. Biele pravouhlé hmoty. Jednoduchosť formy.
- Špecifická symbióza ľudí a strojov. Biele pravouhlé hmoty. Jednoduchosť formy.
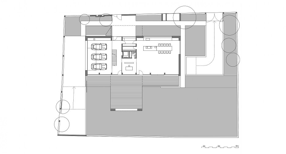
Pražská vila je obrazom životnej náplne investora, ktorou sa mu okrem rodiny stali autá. Rozľahlé prízemie pripomína autosalón a autom je možné vojsť takmer až do kuchyne. V podstate ide o bývanie v luxusnej garáži.
Koncept návrhu výrazne ovplyvnili vzrastlé stromy na južnej a západnej hranici pozemku, ktorým sa podriaďuje základná orientácia stavby a jej tvarovanie.
Veľkú časť záhrady tvorí obdĺžniková trávnatá plocha s rozmermi tenisového kurtu, kde sa každú nedeľu organizuje rodinný futbalový turnaj. Plynulý prechod medzi interiérom a exteriérom zabezpečuje presklená južná stena a terasa. Vonkajší priestor je čiastočne prekrytý hmotou poschodia, ktorá slúži ako prístrešok. Pod konzolou je miesto pre autá, ale aj pre večerné posedenie. Z hrany múru je možné spustiť projekčné plátno.
Konštrukciu domu tvoria dva hranoly, ktoré sú na seba kolmo položené. V suteréne betónového domu sa okrem veľkej garáže nachádza aj technické zázemie a menší byt pre rodičov alebo personál.
V otvorenom prízemí je jedinou pevnou časťou v interiéri betónový box, ktorý sa nachádza uprostred dispozície. Je tu ukrytý výťah, záchod a špajza. Atmosféra prízemia domu je aj vďaka tomu veľmi vzdušná. Už od vstupu je vidieť cez jednotlivé časti prízemia takmer cez celý dom.
Po schodoch sa dostávame do nočnej časti domu, ktorá je orientovaná kolmo na prízemie. Nachádza sa tu šesť spální a tri kúpeľne. Každá zo spální má výhľad do záhrady a susedného parku. Spálne majú tiež prístup na terasu, kde sa dá opaľovať a hrať basketbal.
Na prízemí ostal pohľadový betón v surovej podobe, bez ďaľších korekcií. Betónové steny a strop dopĺňa liata priemyselná podlaha. Priestory nočnej časti domu sú oživené dubovým drevom.
K priaznivej energetickej bilancii domu prispievajú kavalitné izolačné trojsklá, ktoré sú tienené vonkajšími žalúziami. Steny sú vyhotovené ako zateplený betónový sendvič. K tepelnej pohode prispievajú aj chladené betónové stropy v spálňovej časti. Vykurovanie zabezpečuje tepelné čerpadlo.zaujímavosťou je výkonné vetranie a odsávanie výfukových plynov v prízemnej a garážovej časti.
Podklady: Schindler Seko architekti, zdroj: archinfo.sk
Čítaj viac z kategórie: Architektúra























