Soho si získalo srdcia Bratislavčanov. Jedlom, prístupom aj priestorom
- Účelný a praktický interiér gastro prevádzky. Do priestoru očisteného od nepôvodných stavebných zásahov pribudli nové prvky kontrastne odlíšené od pôvodných konštrukcií.
- Účelný a praktický interiér gastro prevádzky. Do priestoru očisteného od nepôvodných stavebných zásahov pribudli nové prvky kontrastne odlíšené od pôvodných konštrukcií.
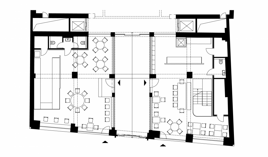
Bistro SOHO sa nachádza v parteri a prvom podlaží modernistického objektu Central pasáže v historickom centre Bratislavy, postavenom v rokoch 1928 – 1929 podľa projektu Franza Wimmera a Endre Szönyiho. Budova prešla v roku 2006 radikálnou rekonštrukciou, ktorá odstránila takmer všetky pôvodné prvky a vniesla do pasáže „luxusné“ leštené povrchy vo forme kamenných obkladov a podláh, leštenej nereze a skla. V súčasnom priestore bistra sa nachádzal módny butik.
„Viac podobných článkov nájdeš na Archinfo.sk.“
Hlavným zámerom návrhu bolo očistenie priestoru od všetkých nepôvodných zásahov a vytvorenie funkčného konceptu bistra, ako aj opätovné oživenie parteru spolu s aktiváciou ulice pomocou exteriérového sedenia. Priestor bol odstránením točitého schodiska opätovne rozdelený na dva celky, reštauráciu vo svetlej farebnosti a bar s kaviarňou, ladený do kontrastných čiernych farieb.
Mobiliár oboch častí je jednoduchý, vyhotovený z bukovej morenej preglejky. Novo vložené konštrukcie sú priznané, obložené dreveným rastrom zo smrekových hranolov. Vytvárajú materiálovú stenu, ktorá pôsobí kontrastne voči tvrdej žulovej podlahe. Priestor benefituje s dostatečného presvetlenia cez veľké štvorcové okná, večernú atmosféru dotvára intímne osvetlenie stolov a žiarovková girlanda, ktorá vytvára teplé difúzne svetlo.
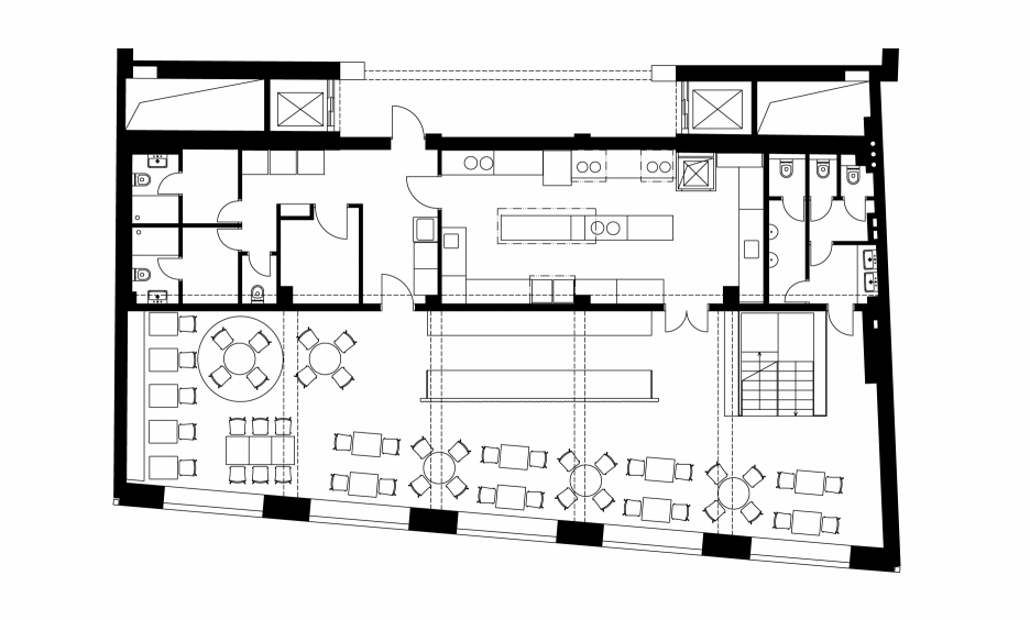
Priestor reštaurácie sa skladá z dvoch celkov, prízemnej časti otvorenej z parteru a velkého priestoru na poschodí prístupného pomocou nového vloženého ocelového schodiska. Schodisko je zavesené na nosnú konštrukciu stropu, aby pôsobilo subtílne a vzdušne. Na poschodí za materiálovou drevenou stenou je situované celé reštauračné zázemie, vrátane toaliet pre zákazníkov.
Barový pult má z čelnej strany betónový obklad, ktorý svojim zvlnením dopĺňa drevený raster steny a zároveň interiér vizuálne prepája s ďalšou prevádzkou SOHO.
Menší priestor baru nachádzajúci sa v ľavej časti parteru ponúka kontrastnú intímnu atmosféru, podporenú jednotnou čiernou farebnosťou stien a mobiliáru. Vyniká len odhalený betónový strop a žulová podlaha, zmatnená aby nevytvárala nežiaduce odlesky.
Podklady: gutgut + GRAU, zdroj: archinfo.sk
Čítaj viac z kategórie: Architektúra








