Starý byť zmenili na presvetlený a moderný priestor. Ponechali však aj kus retra
- Rekonštrukcia dispozične už aj tak skvelého bytu v centre Bratislavy sa skončila úspešne
- Stojí za ňou architektonické štúdio na čele s architektom Martinom Maňom
- Byt sa nachádza na 4. poschodí staršieho bytového domu, je plný svetla a extrémne priestranný
- Rekonštrukcia dispozične už aj tak skvelého bytu v centre Bratislavy sa skončila úspešne
- Stojí za ňou architektonické štúdio na čele s architektom Martinom Maňom
- Byt sa nachádza na 4. poschodí staršieho bytového domu, je plný svetla a extrémne priestranný
Krásne ulice v Starom meste, v tesnej blízkosti Slovenského rozhlasu, predstavujú jednu z najlepších bratislavských lokalít na bývanie.
Vieš čo sú nadsvetlíky?
Práve tie stoja za dokonalým svetlom v byte. Nachádzajú sa nad dverami a z vysokých okien vpúšťajú do bytu denné svetlo. Staré byty sú typické svojimi vysokými stropmi a teda aj vyššie položenými oknami. Preto bolo takéto riešenie ideálne a zabránilo niekdajším tmavým chodbám či vstupným halám.

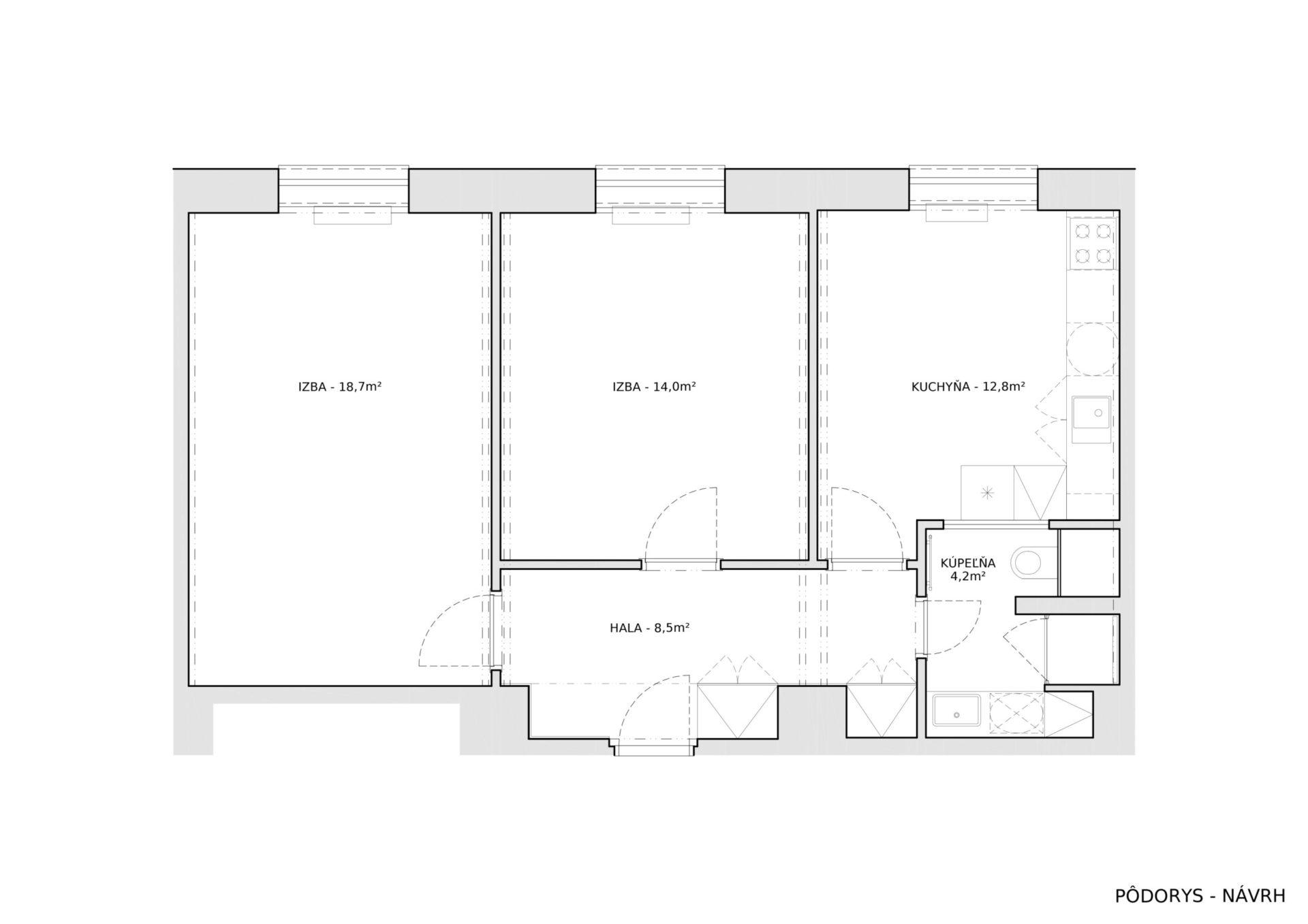
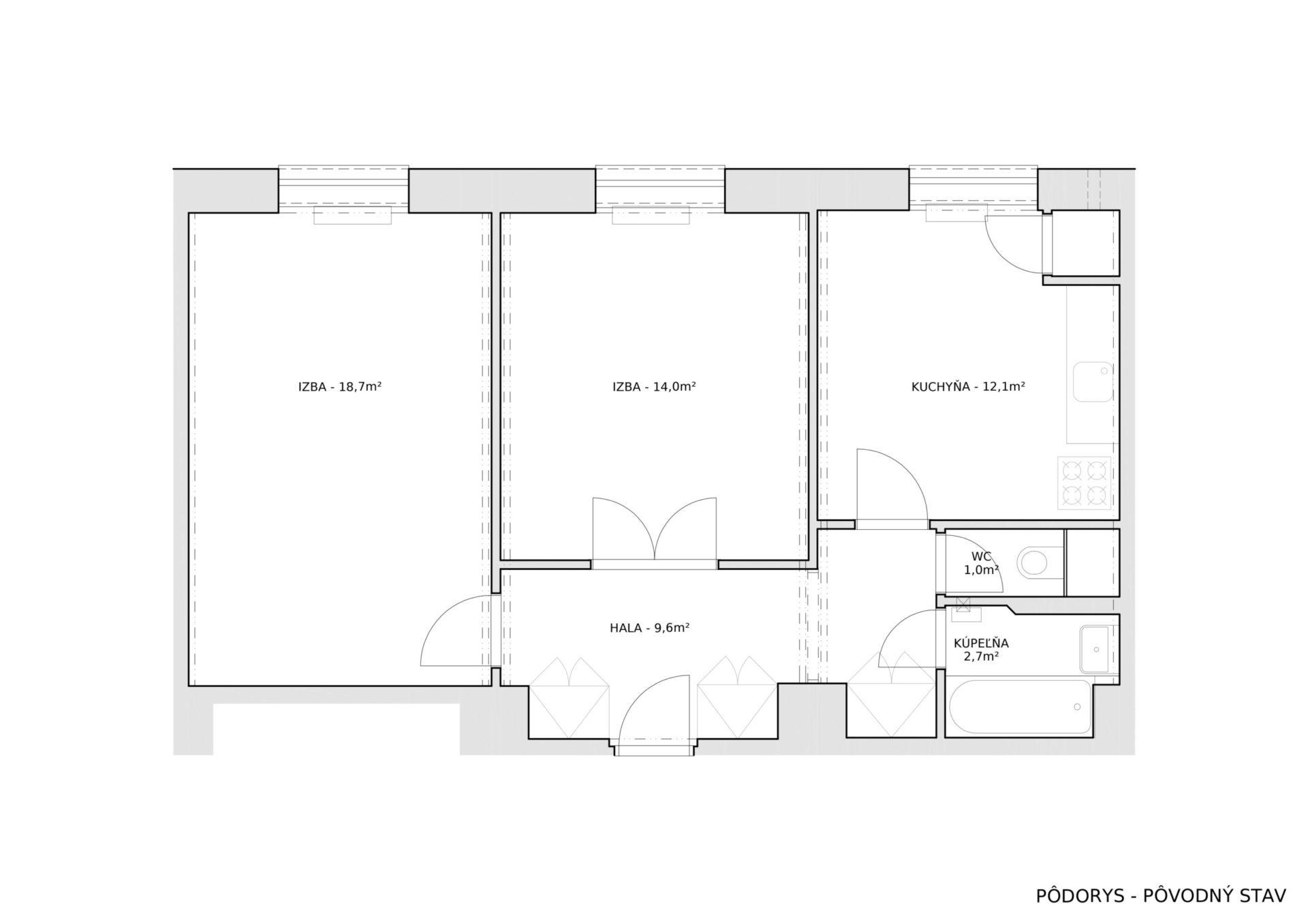
Byt je 2-izbový so samostatnou kuchyňou a nadchádza sa na 4. poschodí staršieho bytového domu na Záhrebskej ulici v Bratislave. Byty sa v tejto lokalite pohybujú v cenových reláciách od 177-tisíc eur. Za takúto cenu tu nájdeš byt o výmere 76 štvorcových metrov a vyžaduje si následnú rekonštrukciu.
Rozloha tejto reality je 58,1 štvorcových metrov a celá rekonštrukcia stála 40-tisíc eur. Zrealizovaná bola v roku 2019.
Čo sa zachovalo a prečo je to dobré?
Samozrejme podlahy. Ak sa v pôvodnom byte nachádzajú kvalitné drevené podlahy a sú v zachovalom stave, netreba im veľa. V tomto prípade to tak bolo. Architekti od Martina Maňa a interiéroví dizajnéri zhodnotili, že budú výborne dolaďovať interiér. Bunkové parkety tak prebrúsili a prelakovali.
Pôvodný obývačkový nábytok zo 60-tych rokov prečalúnili a ošetrili. Ten sa stal súčasťou bytu rovnako, ako jedálenský stôl a stoličky.

Z kuchyne, chodieb a niektorých izieb odstránili linoleum a nahradila ho dlažba, ktorá koncepčne priestor skvelo vypĺňa.
Vieme, ako to v starých bytoch, ktoré síce majú potenciál, no sú z rôznych príčin zanedbané, vyzerá. Neprehľadný priestor, zastaralé technológie a mnohokrát už aj neobývateľné miestnosti.
Architekti sa zamerali predovšetkým na funkčnosť obytného celku a jednotlivých jeho častí. Bytu vládne čistý minimalizmus. Ten vidieť najmä v prevedení stien, obkladov a stropov.


Steny sú biele, pôvodné maľovky boli odstránené a nahradené novou, čistou a nezáväznou. Doplnené sú o drevené prvky – dvere, dverové rámy, zárubne, predely a úložné priestory, ktoré sú veľmi funkčne a rafinovane zakomponované do priestoru.
Kúpeľňa a toaleta sa prepojila, čím sa automaticky priestor lepšie využil.
Dispozične sa riešili navyše priečky medzi obývačkou a kuchyňou, z ktorej sa nakoniec stala samostatná miestnosť. Odhalili sa aj betónové prievlaky, ktoré sa vďaka svojej aktuálnej popularite dostali do mnohých prestavieb interiérov. Vidíme ich nielen v bytoch, ale aj reštauráciách či verejných priestorov.
Čítaj viac z kategórie: Architektúra