Stodola alebo dom s najkrajším výhľadom?
- Dostavba hospodárskeho domu. Autorom je ateliér miestneho rodáka Georga Bechtera. Stavba bola ocenená rakúskou nomináciou na tohtoročnú Európsku cenu za architektúru - Mies Van Der Rohe Award.
- Dostavba hospodárskeho domu. Autorom je ateliér miestneho rodáka Georga Bechtera. Stavba bola ocenená rakúskou nomináciou na tohtoročnú Európsku cenu za architektúru - Mies Van Der Rohe Award.
Obraz rozmanitej alpskej krajiny regiónu Bregenzerwald spoluvytvárjú drevené stavby. Miestna architektúra je účelná, prirodzená a spätá s prírodou. V oblasti sa sa zachovali zručnosti späté s týmto tradičným materiálom a využívajú sa v duchu dnešnej doby. Príkladom je aj malá obec Hittisau, kde nájdeme viacero zaujímavých stavieb spájajúcich tradíciu so súčasným spôsobom života.
História tohto archetypu stavieb siaha do 17. storočia, kedy sa rozvíjala zástavba na južne orientovanom svahu nad údolím. Až donedávna bol dom patriaci miestnej rodine plne využívaný. Objekt však z veľkej časti vyhorel a bolo potrebné rozhodnúť o jeho ďalšom osude. Majitelia sa rozhodli pre rekonštrukciu a úpravu obytnej časti budovy. Stavba si zachovala svoju typickú siluetu, pričom však nová nová časť reaguje na náročné požiadavky majiteľov.
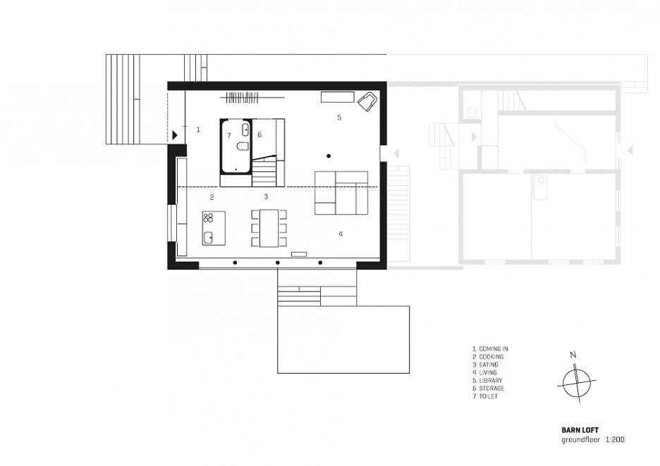
Nosnú konštrukciu obnovenej časti objektu tvoria smrekové hranoly v kombinácii s lepenými drevenými väzníkmi. Prevádzka je rozdelená na dennú časť na prízemí a spanie situované na vloženom medzipodlaží. Najvýraznejším zásahom do pôvodnej podoby drevostavby bolo integrovanie rozsiahleho zasklenia do južnej fasády. Zasklenie siaha takmer po strop, čo umožňuje presvetlenie a výhľady na panorámu údolia aj z vyššieho podlažia. Špecifickým detailom je možnosť vertikálneho posunu spodných polí zasklenia. V lete tak možno prepojiť otvorený obývací priestor s exteriérovou pobytovou terasou. Okenné parapety potom slúžia ako komfortné sedenie. Jedinou oddelenou časť na prízemí je hygienický blok, ktorý oddeľuje zádverie.
Hrazdená konštrukcia domu je nanovo zateplená izoláciou z celulózy. Z interiéru tvorí pohľadovú vrstvu rezivo šírky 45 cm, ktoré je natreté bielou lazúrou. Na stenách a strope je pod náterom jasne viditeľná štruktúra dreva. Pri stenách sa podarilo dosiahnuť parameter U 0,15 W/m² K. Vložená konštrukcia poschodia je vyhotovená z masívnych smrekových profilov. Obklad a podlahu tvoria taktiež smrekové dosky s priznanou prírodnou farbou a textúrou. Toto riešenie bolo zvolené s ohľadom na cenu a rýchlosť stavby.
Šindle na šikmej streche sú v rámci miestnej tradície vyrobené z trvácneho smrekovcového dreva. Jedľové drevo je použité ako obklad na fasádach, drevo z limby s vysokým podielom živice zas zabezpečuje trvácnosť zábradlia.
Podklady: Georg Bechter Architektur+Design,, zdroj: archinfo.sk
Čítaj viac z kategórie: Architektúra











