V jednoduchosti je krása. Architektonický skvost neďaleko Bratislavy
- Zaujímavá alternatíva k mnohým okázalým, tvarovo rôznorodým rodinným domom, ktoré vyrastajú okolo nás.
- Zaujímavá alternatíva k mnohým okázalým, tvarovo rôznorodým rodinným domom, ktoré vyrastajú okolo nás.
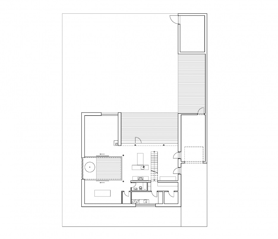
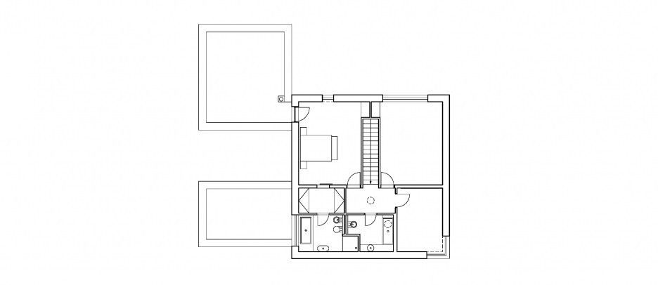
Kittsee (v minulosti Kopčany (pri Bratislave); maď. Köpcsény; chorv. Gijeca) je obec v Rakúsku v okrese Neusiedl am See, v blízkosti bratislavských mestských častí Petržalka a Jarovce. Rodinný dom sa nachádza v novej uličnej zástavbe rodinných domov a reaguje na dvojpodlažnú bytovú výstavbu na opačnej strane ulice s plochou strechou. Aj vďaka bytovej výstavbe dochádza k urbanistickej jednotnosti s prínosom sociálnych interakcií miešania zástavby rodinných domov a bytovej výstavby. Do ulice sú orientované okná pracovne a so zvýšeným parapetom aj do práčovne.
Viac podobných článkov nájdeš na Archinfo.sk
Pozemok je rovinatý s výhľadmi na Berg a marhuľové sady, ktoré sú typické pre Kittsee. Základným kompozičným stvárnením hmoty je prepojenie a rozdelenie priestorov dvomi átriami.
Átriá zabezpečujú súkromie a zároveň sú protiveternou ochranou, ktorá je v tejto lokalite potrebná. Južné átrium je odizolované natočenými lamelami z cédrového dreva s vlastným bonsaiom a priehľadmi na do krajiny cez obývačku. Dochádza tak k maximálnej miere prepojenia interiéru s exteriérom.
Zo severnej strany je pozemok chránený garážou a záhradným skladom medzi ktorými sa nachádza 10 metrové prekrytie terasy.
Denné miestnosti sú smerované do záhrady, technická miestnosť, práčovňa a špajza a na poschodí hygienické miestnosti sú obrátené do ulice.Týmto riešením sa čiastočne odizoloval súkromný život domácich od verejného priestoru. Pocit intimity v záhrade podporuje aj umiestnenie garáže, zastrešenej terasy a záhradného skladu.
Budova je vykurovaná a chladená tepelným čerpadlom zem – voda kombináciou stropných a stenových distribučných zón. Pod hliníkovými oknami sa nachádzajú 80 cm široké pásy podlahového vykurovania. Vzduchotechnika je riešená rekuperačnou jednotkou s nasávaním vzduchu zo severnej fasády.
Stenový nosný systém je zhotovený z 250 mm dutinkovej tehly zateplenej 200 mm izolácie. Stropy sú betónové.
Zdroj: archinfo.sk
Čítaj viac z kategórie: Zaujímavosti





















