Interiér domu v Rusovciach je priam nadpozemský
- Zlísky architekt Martin Frank svojim návrhom vstupoval do rozbehnutého projektu. Dom, ktorý stojí na okraji zastavaného územia Rusoviec v susedstve s lesom CHKO Dunajské Luhy navrhol slovenský architekt Ľubomír Peráček ako ekologickú stavbu z CLT panelov. Po dohode s ním oslovili majitelia Martina Franka, aby sa podieľal na návrhu interiéru.
- Zlísky architekt Martin Frank svojim návrhom vstupoval do rozbehnutého projektu. Dom, ktorý stojí na okraji zastavaného územia Rusoviec v susedstve s lesom CHKO Dunajské Luhy navrhol slovenský architekt Ľubomír Peráček ako ekologickú stavbu z CLT panelov. Po dohode s ním oslovili majitelia Martina Franka, aby sa podieľal na návrhu interiéru.
Lužný les, príroda, a v nej zástavba rodinných domov. Prírodná patina drevených obkladov fasád, čierne rámy na veľkoformátových oknách, biele detaily v omietke. Streotyp, ktorý sa na všetkých domoch opakuje, je prítomný v pohľadoch z každej miestnosti a ovplyvňuje farebné a materiálové riešenie interiéru. Základom je biela farba, ktorá zjednocuje rôznorodé povrchy a štruktúry.
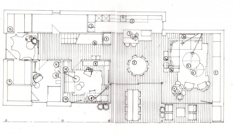
Dispozícia dvojpodlažného domu je vertikálne členená na dennú a nočnú časť. Na prízemí návštevník vstupuje do haly, ktorá je otvorená presklenou stenou do krytého státia pre dve vozidlá. Priestor je prepojený s dvoma priestrannými šatňami. Osou domu sa tiahne pozdĺžna komunikačná zóna so schodiskom, odkiaľ je vstup do wellness miestnosti so saunou a do pracovne, slúžiacej aj ako hosťovská izba. V čele dispozície sa nachádza veľký obytný priestor, ktorý je svojím zvýšeným stropom rozdelený na dve časti. Nižšiu časť s kuchyňou a jedálňou a prevýšenú zónu s obývacou izbou. Z obytného priestoru je prístupná letná terasa s bazénom. Kuchyňa je pomyselne rozdelená. Varná časť s ostrovčekom je orientovaná do jedálne a príprava s drezom smeruje k stene a do priestoru pod schodiskom. Na druhom podlaží sa nachádzajú tri spálne, šatňa a dve kúpeľne.
Strohá geometria s pravouhlými líniami nábytku a biele priestorové štruktúry prebiehajúce interiérom zjednocujú obytný priestor domu. Súčasne tiež umožňujú vytvoriť čisté odkladacie priestory pre predmety každodennej potreby.
Biela farba je použitá v mnohých odtieňoch a štruktúrach na drevených olejovaných podlahách, na hrubo brúsenom dubovom nábytku alebo bielom mramorovom obklade. Prechádza aj do textilu – biely ľan na obliečkach a závesoch. To všetko v kombinácii s detailmi z masívneho dreva.
Drevo je použité v kombinácii s bielym mramorom na obkladoch kúpeľní, kuchyne a vstupu. Ako doplnkový materiál je zvolený lesklý kov. Nerezová kuchyňa pôsobí ako solitérny prvok v priestore. Drevená konštrukcia domu je priznaná na strope druhého podlažia. CLT panely sú pre zjednotenie natreté bielou lazúrou.
,,…nevytváříme strohé a chladné prostory, ale snažíme se tvořit příjemné prostředí pro jejich uživatele, ve kterém jejich životy a předměty nejsou navíc, ale těší se ze svého vzájemného souladu,“ dodáva na záver Martin Frank.
Podklady: Martin Frank, Deconcept , zdroj: achinfo.sk
Čítaj viac z kategórie: Wellbeing
.jpg)
.jpg)


.jpg)
.jpg)
.jpg)
.jpg)
.jpg)
.jpg)
.jpg)
.jpg)
.jpg)
.jpg)
.jpg)
