Parádne rodinné sídlo s ateliérmi uprostred slovenského vidieka
- Rodinné sídlo v Novej Bani, na mieste osídlenia s dlhodobou rodinnou tradíciou, ktorého súčasťou sú ateliéry. Príklad aktívneho zapojenia pôvodnej vidieckej štruktúry do súčasného viacohniskového spôsobu života.
- Rodinné sídlo v Novej Bani, na mieste osídlenia s dlhodobou rodinnou tradíciou, ktorého súčasťou sú ateliéry. Príklad aktívneho zapojenia pôvodnej vidieckej štruktúry do súčasného viacohniskového spôsobu života.
Pohorie Pohronský Inovec v okolí Novej Bane je miernou horskou krajinou. Čítaním mapy územia nachádzame názvy vrchov a lokalít naznačujúcich, že za každým pomenovaním sú skryté príbehové vrstvy krajiny. V dôsledku obmedzenej prístupnosti po úzkych komunikáciách si krajina svoj charakter zachováva. Dôslednejším hľadaním môžeme objaviť miesta s umiestnením sídel skrytých v záhyboch krajiny, ktoré si udržujú kontinuálny rozvoj aj v súčasnom období.
Sklársku minulosť regiónu si uvedomujeme z pomenovaní na trase od Novej Bane po Starohutskej ceste, cez Chotár, keď prichádzame do časti Sklenné. Nachádzame tu rodinné sídlo, ktorého časťou je rodinný dom s ateliérmi.
Viac podobných článkov nájdeš na Archinfo.sk.
Vznikol na mieste rodového miesta pri staršom dome obyvateľov, pôvodne sa zaoberajúcich poľnohospodárstvom. Súčasný majiteľ-architekt sa rozhodol túto usadlosť rozvíjať, stavebne dopĺňať architektonickými prejavmi, spolu s externými výtvarnými dielami. Usadlosť je budovaná v dlhšom časovom horizonte niekoľkými objektmi s postupne sa vyvíjajúcou funkčnou náplňou. Na začiatku celého procesu bol okamih, keď sa majiteľ rozhodol pokračovať v rozvíjaní tohto rodinného sídla hospodárskymi aktivitami primeranými jeho záujmom. Pôvodný rodinný dom poľnohospodárov bol doplnený dvorom s kamennými stenami. Drevený hospodársky objekt svojou polohou naznačil tendenciu definovania priestoru sídla.
Nová hospodárska budova, pôvodne určená pre chov koní, situovaná oproti pôvodnému domu, uzavrela priestor medzi objektami z tretej strany. Keď sa jej funkcia zmenila na rodinný dom s ateliérmi, potok pretekajúci miernym údolím medzi týmito objektami bol prekrytý, plocha bola zjednotená a doplnená výsadbou drevín, majiteľ mohol pomenovať tento priestor medzi objektmi termínom námestie, s miernym významovým posunom, pretože sa nachádza v rurálnom priestore, ale aj v tomto kontexte termínom inšpiratívnym. Na doplnenie týchto významov je v strede priestoru umiestnené žulové napájadlo datované rokom 1868, pôsobiace ako sochárske dielo, s odkazom na vodu a jej využívanie.
Situácia
Morfológia terénu a architektonické objekty. Pozorovaním pôdorysných polôh objektov na tejto usadlosti objavujeme ich osadenie v priestore a teréne ako prejav architektonickej citlivosti autora pri vytváraní tohto mikrourbanistického zámeru.
Rozhodnutia pre jednotlivé polohy objektov vychádzali aj z praktických dôvodov. Poloha a veľkosť drevenej hospodárskej budovy chráni usadlosť pred prevládajúcimi severnými vetrami, naklonenie novej budovy – rodinného domu s ateliérmi – bolo východiskom pre optimálnu polohu k západnému svahu, do ktorého je zarezaná, no súčasne rešpektuje aj líniu potoka.
Pokiaľ je vietor zadržiavaný dreveným objektom, voda regulovaného potoka je v nižšej polohe zadržiavaná hrádzou. V tomto spomalení živlov nachádzame metaforu zastavenia ich plynutia a zvýraznenie významnosti miesta. Prejavená architektonická citlivosť v celkovej koncepcii sídla a v architektonických riešeniach objektov je dôležitá pre objasnenie autorovho prístupu k práci s materiálmi, ktoré sa stávajú súčasťou jeho diela.
Príklon autora k používaniu materiálov v ich prirodzenej podstate, súčasne s odkrývaním ich povrchov a štruktúr, pôsobením najrôznejších zásahov a časového faktoru v otvorených klimatických pomeroch, môžeme považovať za výskum s umeleckým vyznením. Keď kráčame po vnútornom kovovom schodisku z čierneho plechu v ateliérových priestoroch domu, predstavujeme si povrch tohto schodiska po určitom čase a používaní.
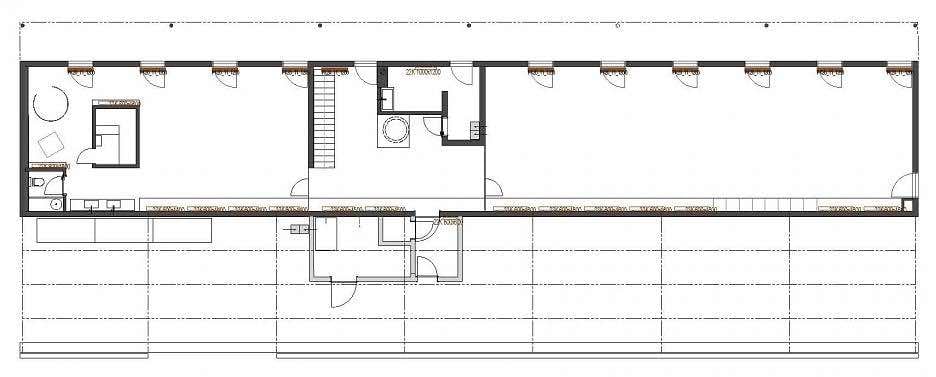
Pôdorys prízemia
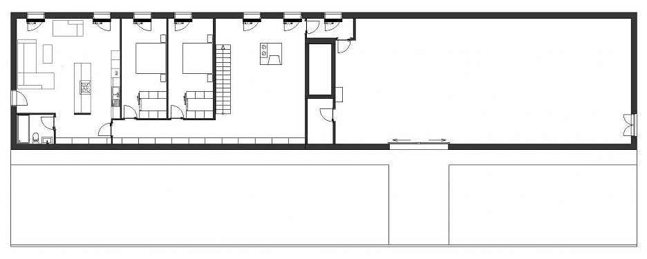
Pôdorys poschodia
V spolupráci s hrdzavosťou vzniknú grafické plochy podobné plochám na oceľových dverách staršieho vzniku. Materiál – čierny oceľový plech – je aj na severnej fasáde domu ako povrch mohutného dverného krídla.
Dimenzie sú fascinujúce, vonkajšia exteriérová plocha je červenohrdzavého farebného tónu, v čerstvej zeleni okolitých prírodných plôch je to priam jarný zázrak, ktorý sa však v čase mení a zanikne. Každým rokom o 0,1mm. Je to tiché pozorovanie premeny.
Na druhej strane zaznamenávame autorské pokusy s karbonizáciou drevených povrchov mohutných dubových plastík. Ich takto upravený povrch by mal vzdorovať časovému faktoru v polohe vystavenej poveternosti. Takýto vzťah k materiálom je umeleckou meditáciou majiteľa a predstavuje aj duchovný rozmer jeho pôsobenia na tejto usadlosti.
Tento rozmer bytia nie je artikulovaný znakmi so špecifickými významami, ale najhlbšou jednoduchosťou pri pôsobení času na zvolenú materiálnosť objektov, ktoré sám navrhuje. Pripomíname myšlienky Stevena Holla k problematike povrchov v architektúre, kedy štruktúrované plochy a ich vnímanie otvára našu vnútornú reflexiu. V samote usadlosti na Sklennom a v práci s materiálmi sa majiteľ dotýka podobných oblastí.
Keď prechádzame cez ďalšie interiérové priestory, objavujeme súhru rôznych materiálových povrchov objektu, buď ako vložených povrchov – peniažková čierna gumenná podlaha –, alebo povrchy keramických stropov, ako súčasť stavby.
Objekt obsahuje ateliérové priestory pre spracovanie kovu, dreva, skla a kompozitných materiálov. Rezidenčné priestory sú oddychovou časťou, spolu s konferenčným priestorom. Tu nachádzame mohutný drevený stôl v jednoduchých geometrických objemoch, doplnený mäkko tvarovanými stoličkami, medzi rôznorodými plochami interiéru, svietidlami, priepustnou štruktúrou zatienenia okien, autorskými objektami.
Pôvodná koncepcia objektu ako stajňa pre kone bola východiskom pre súčasnú náplň a otvorená štruktúra objektu to akceptovala s ľahkosťou.
Vonkajšie povrchy architektúry rodinného domu s ateliérmi sú pokryté titánzinkovým plechom s horizontálnymi spojmi. Prízemná časť objektu s horizontálne ukladaným dreveným obkladom červeného farebného tónu prináša ľahkosť a mäkkú výrazovú stopu do architektúry objektu ako pozadie ku klasicizujúcemu stĺporadiu oceľových stĺpov. Horizontálne materiálové línie podporujú metaforu plynutia vyššie spomenutých fenoménov.
Za proporčnosťou objektov a priestorov medzi, vo vzťahu k otvorenému okolitému priestoru, rozoznávame autorov vzťah k materiálnemu svetu a jeho veľkosti. Architektúra objektu rodinného domu s ateliérmi priniesla do tohto skrytého prostredia podnetný moment. Materiály, ich štruktúrovanie a detaily, kompozičná jednoznačnosť celku, vytvorenie náznakového mikrourbánneho priestoru otvára pre majiteľa a autora v rámci veľkosti pozemku ďalšie možnosti. Naznačujeme nenápadnú paralelu s postupmi Philipa Johnsona v New Canaan.
zdroj: archinfo.sk, autori fotografií: Soňa Sadloňová, Norbert Šmondrk
Čítaj viac z kategórie: Zaujímavosti










