Aj menší byt sa dá krásne presvietiť. Dôkazom je tento interiér, ktorému dominuje veľký otvorený priestor
- Presvietiť interiér v byte nie je vždy také jednoduché, ako si možno myslíme
- Veľmi dobre sa to však podarilo architektovi Zoranovi Trpčevskimu, ktorý si vzal na mušku byt v Košiciach
Zoran Trpčevski
- Presvietiť interiér v byte nie je vždy také jednoduché, ako si možno myslíme
- Veľmi dobre sa to však podarilo architektovi Zoranovi Trpčevskimu, ktorý si vzal na mušku byt v Košiciach
ČLÁNOK POKRAČUJE POD REKLAMOU
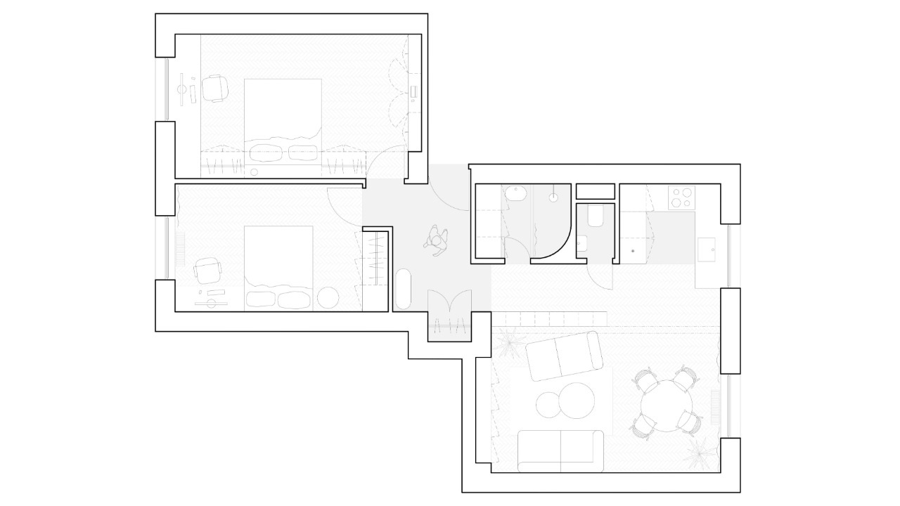
Byt, na ktorý sa sústredil architekt Zoran Trpčevski, sa nachádza v širšom centre Košíc. Na žiadosť majiteľov sa snažil zladiť kuchyňu do čiernej farby, kúpeľňu do kombinácie bielej a čiernej, a presvietiť celý interiér.
Dominantou bytu sú tri materiály. Konkrétne ide o brezovú preglejku, čiernu MDF dosku a štukovú omietku. Vo veľkej časti bytu sa nachádzajú dubové parkety. Keďže bolo jedným z hlavných cieľov rekonštrukcie presvetlenie interiéru, bolo potrebné odstrániť priečky. Veľký otvorený priestor tak pozostáva z kuchyne, jedálne a obývacej izby.








Čítaj viac z kategórie: Architektúra