Byt na Palisádach sa renováciou stal miestom pre moderného človeka
- Interiér v starom bytovom dome s vysokými stropmi. Byt s pôvodne tmavou spoločenskou miestnosťou, rozdelený na množstvo malých miestností, sa v maximálnej možnej podarilo otvoriť. Vznikol svetlý a vzdušný interiér.
- Interiér v starom bytovom dome s vysokými stropmi. Byt s pôvodne tmavou spoločenskou miestnosťou, rozdelený na množstvo malých miestností, sa v maximálnej možnej podarilo otvoriť. Vznikol svetlý a vzdušný interiér.
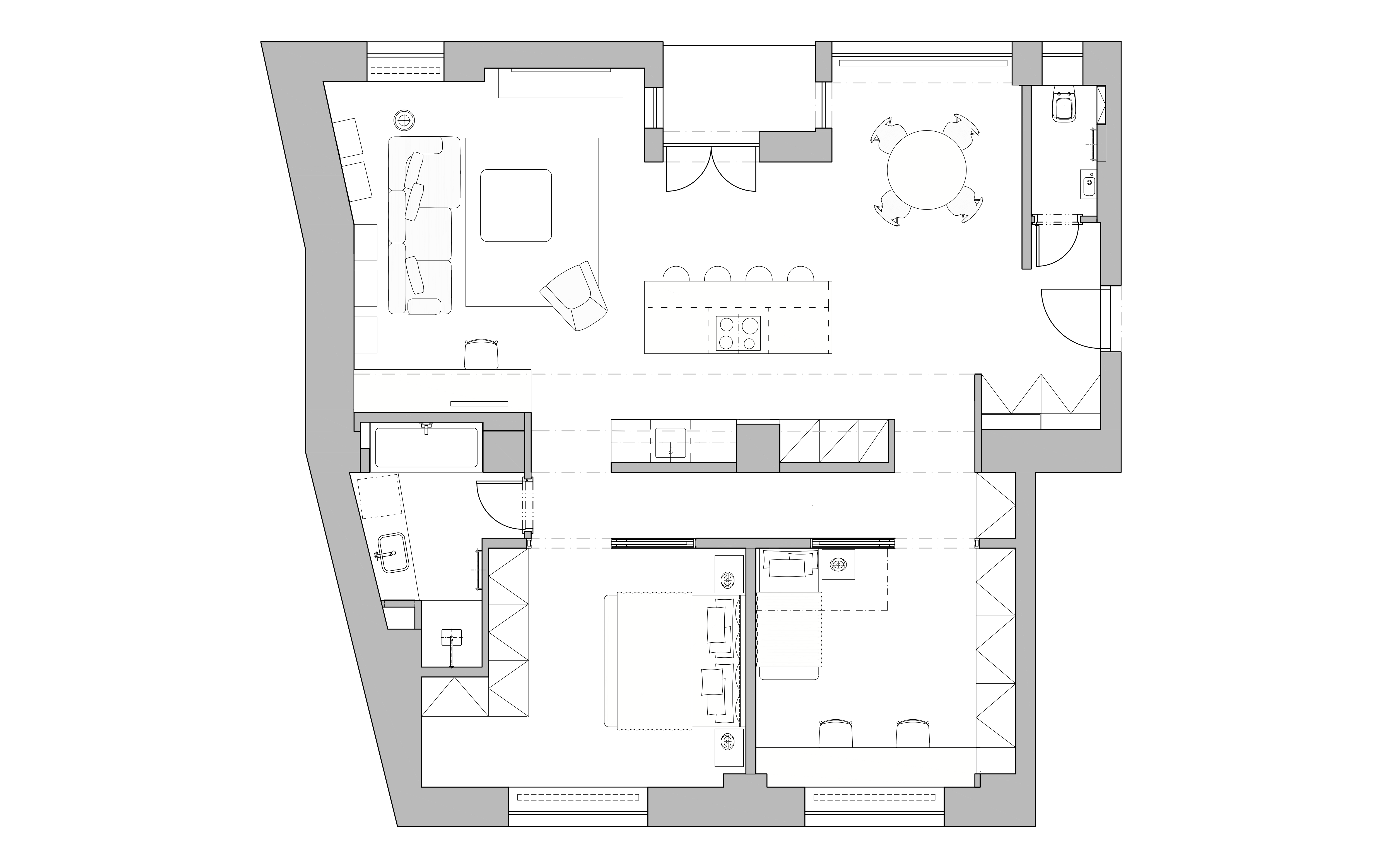
Byt z roku 1949 prešiel rozsiahlou rekonštrukciou. Množstvo drobných izieb bolo pre nových majiteľov nevyhovujúce, a tak sa takmer všetky priečky zbúrali. Minimum zvislých nosných prvkov prialo takejto úprave. Kuchyňa ostala v stredovej časti bytu, no namiesto uzavretého kuchynského kúta sa spolu s rozmerným ostrovom a lodžiou stala hlavným priestorom bytu. V jedálni, ktorá je umiestnená pri veľkom okne, pôsobí ako akcent stena s tehlovým obkladom.
Oddychová časť bytu je od spoločenskej oddelená iba objemom kuchynskej linky v priestore a znížením podhľadu. Podhľad zároveň schoval masívny preklad a umožnil zabudovanie svietidiel. Zo vzniknutej chodby za linkou vedú do spální posuvné dvere na celú výšku priestoru. Pri ich zasunutí plne vyniká maximálne otvorené riešenie dispozície. Byt sa nachádza na 1.NP a obývacia časť je orientovaná do vnútrobloku so vzrastlou zeleňou. Aj preto bola pre interiér zvolená prevažne biela v kombinácii so svetlým drevom, doplnená o rôzne drobné farebné akcenty. Byt takto získal požadovaný charakter priestranného a svetlého bývania.
Vizualizácie návrhu:
Podklady: KCA
Čítaj viac z kategórie: Zo Slovenska










