Dva domy, ale len jedna obývačka. Umelecky založený pár myslel aj na budúce generácie
- Dom je prispôsobený deťom, ktoré sa po čase budú chcieť osamostaniť
- Drevodom je tak rozdelený do dvoch domov, ktorých meeting pointom je obývacia izba
- Dom je prispôsobený deťom, ktoré sa po čase budú chcieť osamostaniť
- Drevodom je tak rozdelený do dvoch domov, ktorých meeting pointom je obývacia izba
Sú dva, šikovne riešené pre potreby rodiny a neďaleko od Bratislavy. Reč je o rodinnom drevodome rozdelenom na dva menšie domy, ktoré prednedávnom vyrástli v rakúskom Marcheggu.
Dvojica domov prepojených otvorenou dennou zónou vytvára priestor pre život a kreatívnu prácu členov rodiny. Klientmi boli tentokrát divadelný režisér a scénografka, ktorý stavali pre seba, dve menšie deti a staršiu dcéru.
Dom navrhli architekti Jaromír Krobot a Michal Vacho. Interiér zrealizovala sama scénografka Eva Kudláčová.


Spolužitie pod dvoma strechami
Koncept počíta s možnosťou neskoršieho rozdelenia a samostatného fungovania oboch celkov. Nakoľko deti sa po čase môžu osamostatniť, ale zároveň byť v blízkosti rodičov. Architekt v tomto bode nastavil rámec, zvyšok ostal v kompetencii rodiny.
„Dom pre divadelného režiséra a scénografku je scénou pre život. Ich, ich dvoch malých detí a staršej dcéry,“ hovorí o projekte architekt Jaromír Krobot.

Proces stavby ako divadelná hra
Stavba má nasledovné dejstvá: V prvom sú dva domy – jadro, v druhom interiér od Evy – scénografky, v treťom terasy a neplánovaný domček na náradie.

„Autonómny a pre nás občas prekvapivý vznik a život jednotlivých častí tohto súboru sme postupne prijali, dokonca začali považovať za súčasť koncepcie domu. Do jeho vývoja aktívne zasahujú obyvatelia – spoluautori a pre nás sa proces stáva ešte zaujímavejším.
Celé toto predstavenie sa odohráva na pozadí veľmi výrazného fortifikačného múru z 13. storočia, ktorý dodáva obsahový rámec a pevné ukotvenie v čase,“ vysvetľuje koncept stavby Krobot.

Koncept domu je akýmsi prevzatím vzorca sídelného plánu bývalého českého kráľovského mesta Marchegg, jeho takmer pravidelného zastavania, plných a prázdnych priestorov a hradieb, ktoré celé mestečko uzatvárajú do jedného celku.
Práve táto myšlienka sa nakoniec odzrkadlila do výsledného projektu. Pôdorys je veľmi jednoduchý, za to funkčný a spĺňa zadanie klientov mať súkromie v oboch častiach domu.
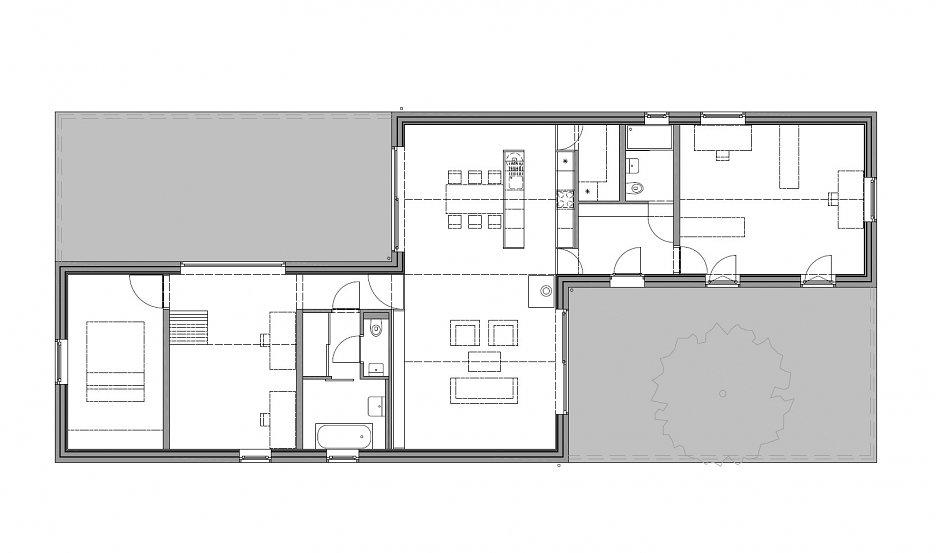
Prvé podlažie

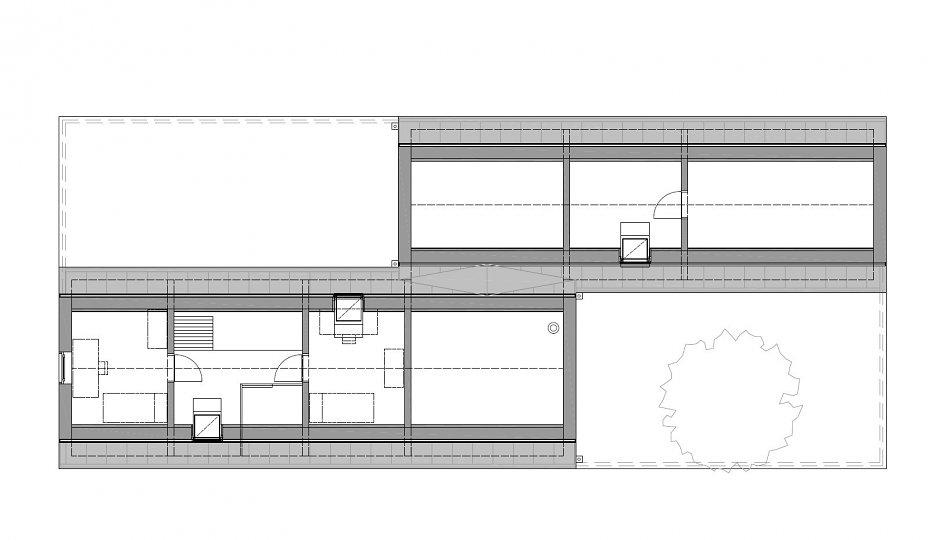
Druhé podlažie

Jednoduchosť bola zachovaná aj v samotnom návrhu interiéru. Dominuje drevo a šedá. Dom, respektíve dva domy sú oproti sebe posunuté, v ich prepojení je hlavný obytný priestor, veľký, spájajúci a zároveň členený tvarom stropu na dve menšie „územia“.


Obývačka ako meeting point dvoch domov
Dva domy sú teraz domom pre rodinu a ateliér oboch rodičov s letnou izbou pre staršiu dcéru.
Pripravené sú ale aj na možné rozdelenie na dva samostatné – každý so svojím zázemím, kde pomyselným miestom stretávania a akými „námestím“ sa stáva priestor obývacej izby.

Podkrovné dobrodružstvo detských izieb
Priestory sú zámerne vyprázdnené, biele a čisté, ktoré si postupne naplnia ich obyvatelia. Detské izby sú dobrodružne v podkroví, do jednej z nich sa ide po rebríku.
Dom je drevostavba, vyrobená hneď za riekou – v rodinnej firme, v hale na Záhorí, dovezená a montovaná vo forme celých hotových stien priamo na mieste.

Čítaj viac z kategórie: Architektúra