Starý bratislavský byt, ktorému vdýchli nový život
- Byt v bratislavskom Starom meste s vysokými stropmi a obytnou plochou 105 m2. Interiér bol citlivo očistený až na stavebnú podstatu. Dispozičné riešenie sa menilo len minimálne, tak aby reflektovalo potreby majiteľov.
- Byt v bratislavskom Starom meste s vysokými stropmi a obytnou plochou 105 m2. Interiér bol citlivo očistený až na stavebnú podstatu. Dispozičné riešenie sa menilo len minimálne, tak aby reflektovalo potreby majiteľov.
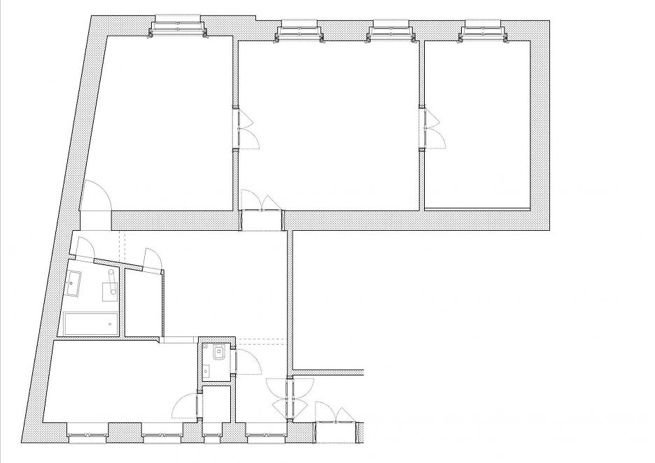
Majitelia kúpili byt v stave, keď mal za sebou už niekoľko výraznejších stavebných zásahov. Pôvodná dispozícia už nebola čitateľná, takisto nebola známa ani historická podoba bytu. Architekti sa preto rozhodli priestor bytu značne otvoriť a sprehľadniť. Stavebné úpravy sa týkali hlavne obslužnej časti bytu, ktorá je orientovaná do dvora. Obytná časť, ktorú tvoria tri samostatné miestnosti bola de facto ponechaná v pôvodnom stave. Veľká svetlá výška a rozmerné okenné otvory sú hlavnou devízou týchto priestorov.
Izby sú prepojené širokými, dvojkrídlovými dverami, ktoré sú umiestnené v osi miestnosti. Pri rekonštrukcii boli zachované pôvodné drevené okná a dvere. Odhalené boli aj parkety, ktoré predchádzajúci majitelia zakryli laminátovými podlahami.
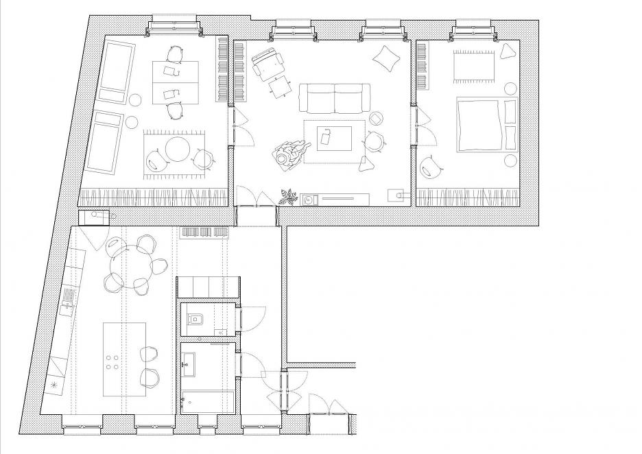
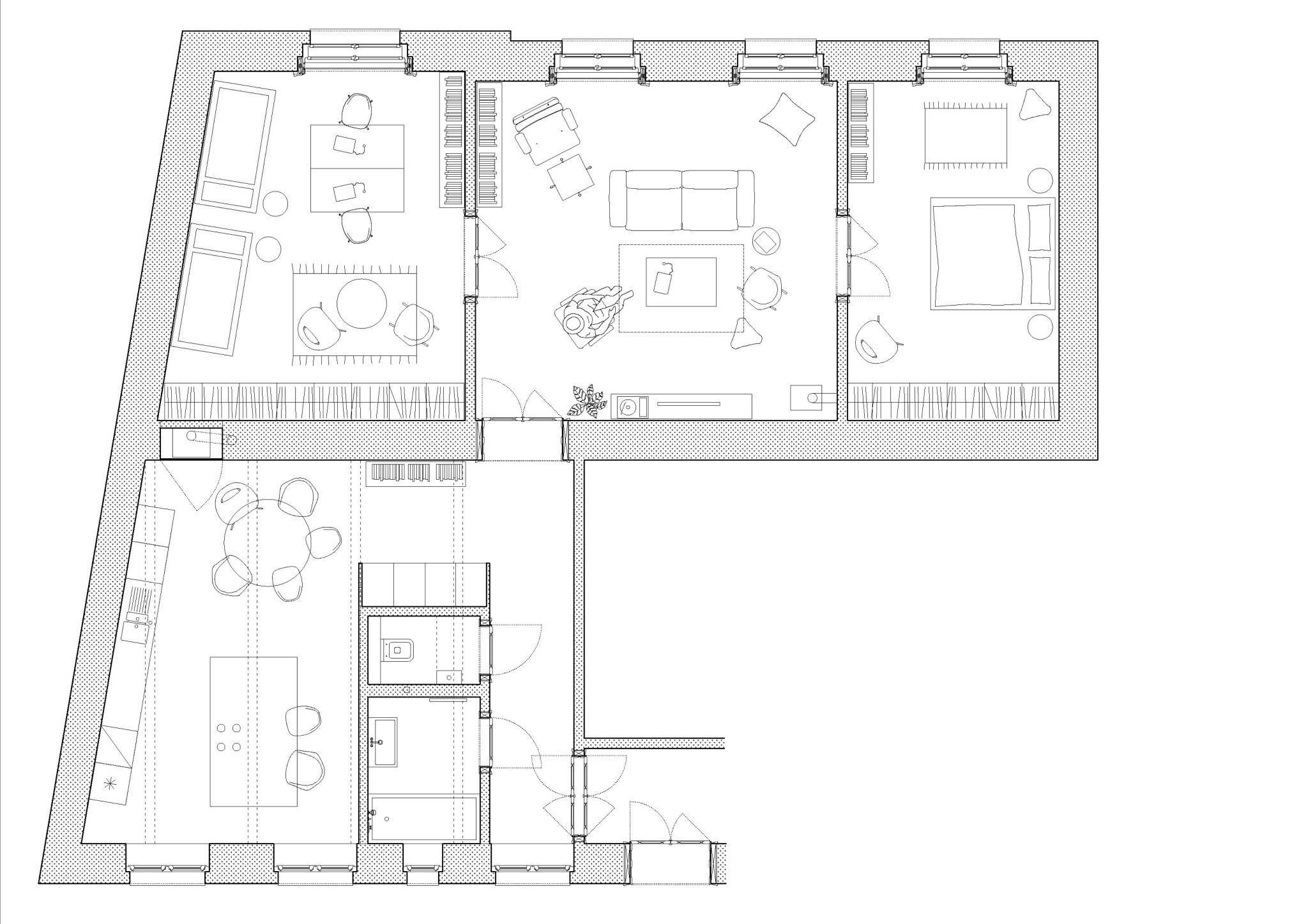
Byt má štyri plnohodnotné izby, pričom dve menšie miestnosti – kúpeľňa a WC našli svoje miesto v „boxe“ vloženom v obslužnej časti bytu. Celková plocha 105 m2 umožňuje priestorovú veľkorysosť. Tá je zrejmá predovšetkým v obývačke a kuchyni. Ako sme už spomínali, návrh je založený na rozdelení bytu do dvoch funkčných zón: na „panskú“ časť orientovanú do ulice (tri obytné izby) a obslužnú časť (kuchyňa, chodba, kúpeľňa a chodba) otočenú do dvora.
V obslužnej časti bytu boli vybúrané nepôvodné konštrukcie a čiastočne sa zasahovalo aj do pôvodných priečok tak, aby vynikol celkový priestor. Klenbový tehlový strop je priznaný a očistený od všetkých predchádzajúcich nánosov. Pôvodná podlaha bola v tejto časti nahradená novými parketami z dôvodu jej nevyhovujúceho stavu.
Do priestoru je vložený box s hygienou, ktorý zároveň oddeľuje vstupnú chodbu od kuchyne. Tento priestorový prvok nesiaha až po strop, čím necháva vyniknúť veľkorysý priestor a tehlový strop. Celú jednu stenu boxu tvoria skryté úložné priestory. Zaujímavosťou je nové použitie zachovaných dverných krídel pri vstupe do kúpeľne a WC.
Kuchyňu tvorí rozmerná kuchynská linka a voľne stojaci kuchynský ostrov.
Foto: Martin Šveda
Byt ešte nie je plne zariadený, postupne pribudnú viaceré nábytkové prvky a nový mobiliár.
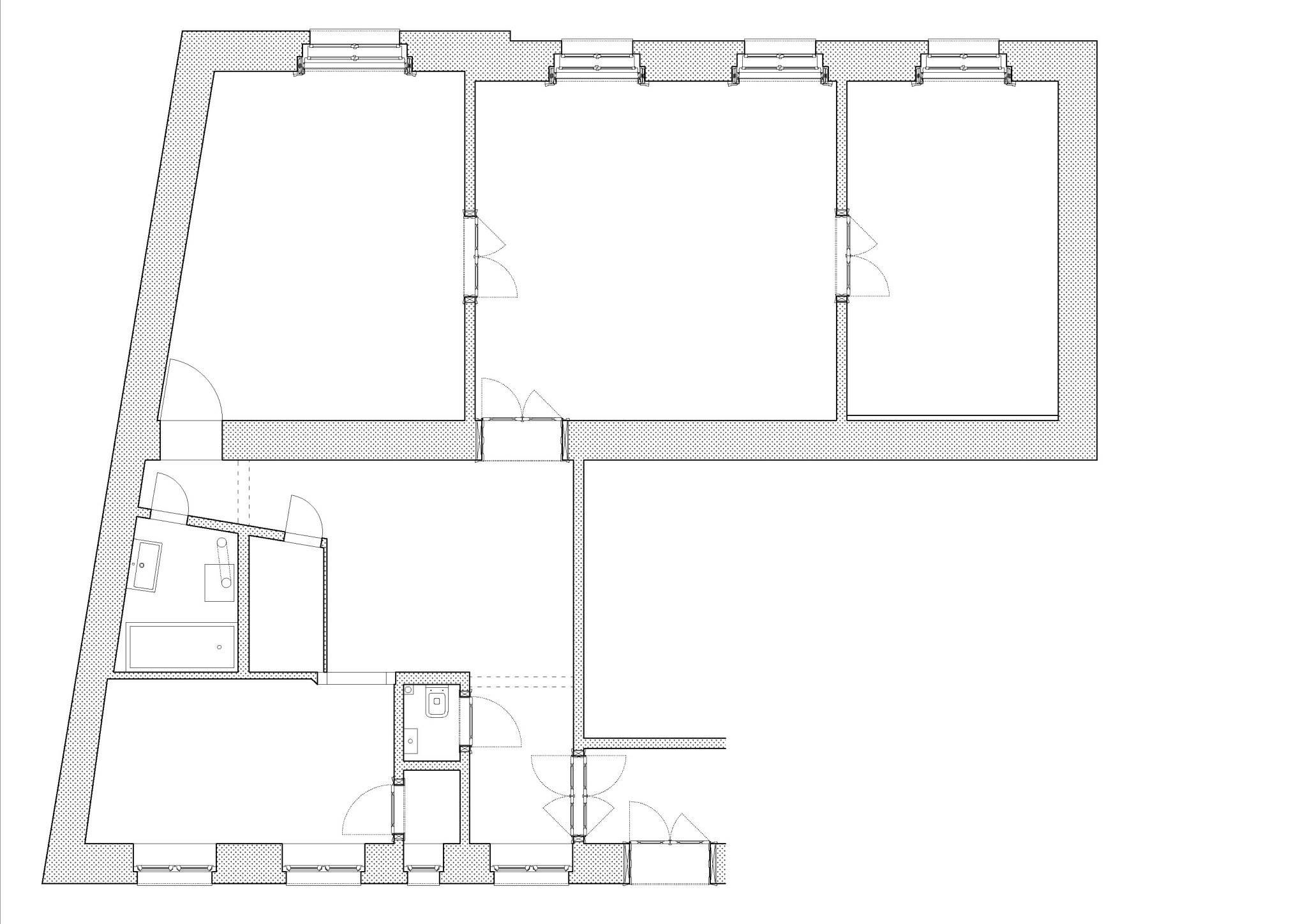
Fotografia počas výstavby
Podklady: GRAU, zdroj: archinfo.sk
Čítaj viac z kategórie: Zo Slovenska



















