Kaviareň na vode spája Hamuliakovo s hlavným mestom
- Ďalší, nie celkom bežný typologický druh. Aj pri takýchto netypických zadaniach je dobré, ak sa k tvorbe dostanú šikovní autori, ktorí vedia skĺbiť technologické aj architektonické požiadavky na dobré dielo.
- Ďalší, nie celkom bežný typologický druh. Aj pri takýchto netypických zadaniach je dobré, ak sa k tvorbe dostanú šikovní autori, ktorí vedia skĺbiť technologické aj architektonické požiadavky na dobré dielo.
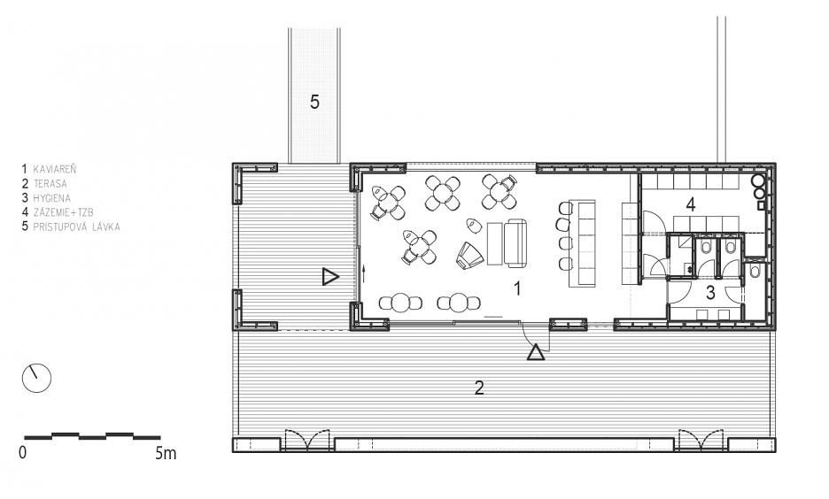
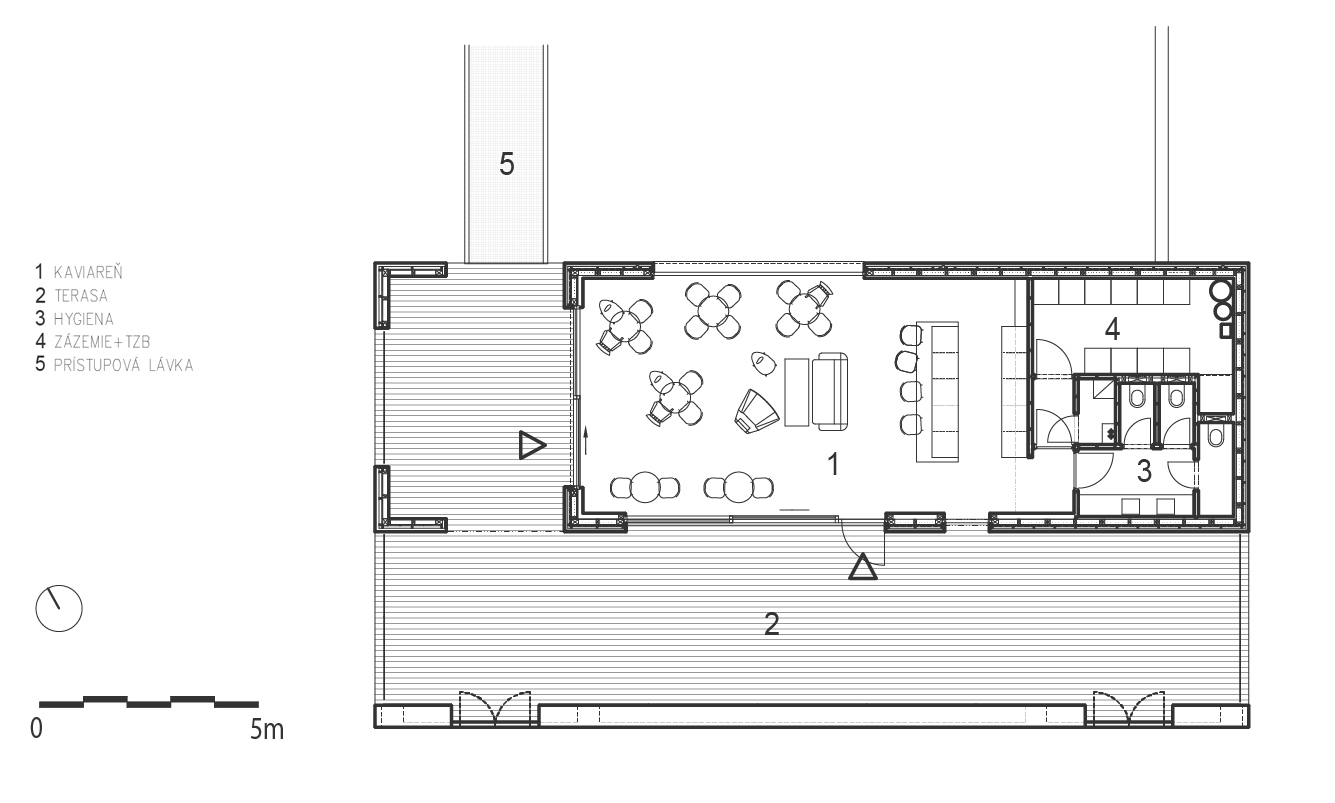
Pristávacie mólo s kaviarňou vzniklo za účelom spojiť obec Hamuliakovo lodnou dopravou s mestom Bratislava. Kaviareň zároveň slúži ako čakáreň pre cestujúcich a predajné miesto lístkov na lodnú dopravu. Objekt kaviarne je umiestnený na plávajúcom železobetónovom pontóne, ktorý je k brehu vyviazaný pomocou sústavy vzpier, lávok a vyväzovacích lán.
Po mostíku vstupujeme na palubu plavidla na pravoboku. Vstup do nadstavby je situovaný na návodnej strane hlavnej paluby. Vstupujeme do priestoru kaviarne, ktorá predstavuje najväčšiu časť objektu. Tento priestor je z troch strán presklený a je tu umiestnené sedenie. Na priestor kaviarne smerom na kormu plavidla nadväzuje zázemie. Zázemie predstavuje technická miestnosť vybavená technológiami potrebnými pre fungovanie objektu, skladový a úložný priestor a toalety.
„Viac podobných článkov nájdeš na Archinfo.sk.“
Návodná hrana pristávacieho móla je určená na pristávanie výletných lodí. Nachádzajú sa tu prvky pre vyviazanie lodí a zábradlie s dvomi bránkami. Dispozícia móla zabezpečuje bezkolízny príchod a odchod cestujúcich z výletných lodí.
Trup plavidla je železobetónovej konštrukcie s polystyrénovým jadrom. Táto technológia zabezpečuje plavidlu vysokú pevnosť, stabilitu a životnosť bez potreby údržby. Vďaka jadru z EPS je trup nepotopiteľný. Súčasťou pontónu je aj žiarovo zinkovaná nádoba, do ktorej je vložená čistiareň odpadových vôd. Objekt kaviarne je riešený ako drevostavba s odvetranou fasádou a výrazným presklením.
Nosnú časť nadstavby tvorí drevená stĺpiková konštrukcia. Vychádzalo sa so štandardného rozmeru nosných prvkov (60×120 mm), ktoré sa používajú v stavebníctve. Opláštenie nosnej konštrukcie je tvorené OSB doskami z vonkajšej strany konštrukcie. Z vnútornej strany nosnej konštrukcie je inštalačná vrstva určená na vedenie elektroinštalácie a potrubí. Nosná konštrukcia strechy je tvorená drevenými I-nosníkmi.
Vzhľadom na plytký charakter dna bolo potrebné umiestniť plavidlo 30 metrov od brehu. Systém vyviazania bol preto rozdelený na dve časti. Prvú časť tvorí pevná lávka a vzpera, ktoré spájajú breh s dalbovým systémom vo vode. Zavetrovanie tejto sústavy je spravené pomocou oceľových lán s napínačmi. Na dalby sú ďalej napojené otočná lávka a otočná vzpera, ktoré sú na dalbách a pontóne uložené vo vahadlách. Aj táto sústava je zavetrovaná oceľovými lanami s napínačmi.
Nakoľko je objekt z brehu pripojený len na elektrickú energiu, je vybavený technológiou úpravy riečnej vody na vodu úžitkovú a vlastnou čistiarňou odpadových vôd zabudovanou v pontóne. Voda je čerpaná priamo z rieky a následne filtrovaná cez sústavu, ktorá pozostáva z dávkovača chlóru, pieskového filtra a uhlíkového filtra. Teplá voda je zabezpečená elektrickými prietokovými ohrievačmi. Na pitie sa používa balená voda. Kúrenie a chladenie objektu zabezpečuje klimatizačná jednotka. Návodná strana móla má vyvýšenú pristávaciu hranu, ktorá je vybavená odierkami a vyväzovacími bitvami pre pristávanie plavidiel.
Hlavným prvkom odpadovej sústavy je čistiareň odpadových vôd, zabudovaná do pontónu. Do nej je zvedená všetka odpadová voda z plavidla. Vyčistená voda je vypúšťaná priamo do okolitej vody. Čistiareň je prístupná priamo cez pochôdznu časť hlavnej paluby, kadiaľ je možné vykonávať kontrolu, nastavenia a pravidelné odčerpávanie kalu.
Podklady: Podklady: SM PONTON, s. r. o., zdroj: archinfo.sk, zdroj titulnej fotografie: koláž
Čítaj viac z kategórie: Zo Slovenska






























