Dom v tvare návesu? Na Slovensku sa taký nachádza a je top
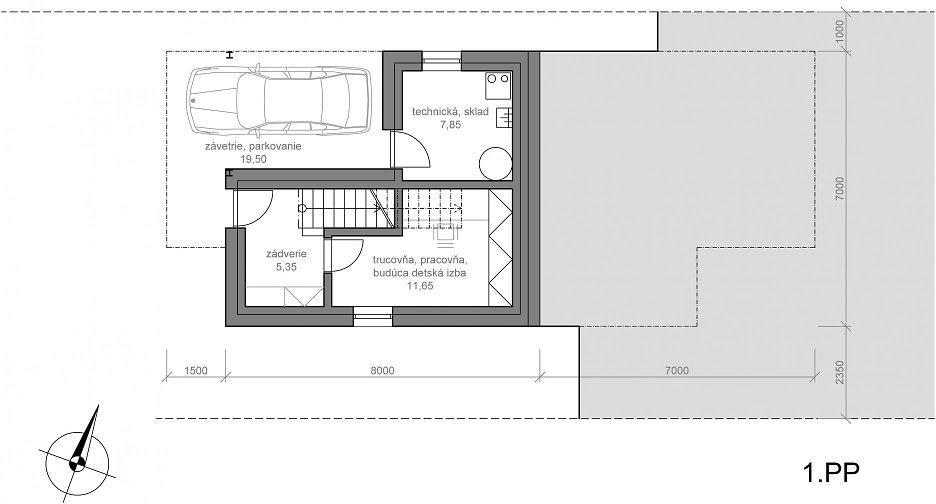
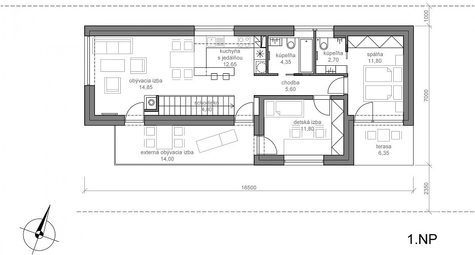
- Úzky svahovitý pozemok s atraktívnym výhľadom predurčil formu malého drevodomu. Osadenie vyžadovalo minimálne úpravy terénu. Dom Je navrhnutý pre štvorčlennú rodinu s minimálnymi nárokmi na priestor, ale s vysokými nárokmi na kvalitu bývania.
- Úzky svahovitý pozemok s atraktívnym výhľadom predurčil formu malého drevodomu. Osadenie vyžadovalo minimálne úpravy terénu. Dom Je navrhnutý pre štvorčlennú rodinu s minimálnymi nárokmi na priestor, ale s vysokými nárokmi na kvalitu bývania.
Dielo predstavuje architekt a zároveň investor Marek Vereš:
Potreba vlastného bývania sa prehĺbila pri očakávaní druhého syna. Vtedy sa nám podarilo nájsť „lacný“ pozemok, ktorý nikto nechcel. Je úzky (10,35 m), je svahovitý, je ďaleko od inžinierskych sietí, ale je krásny a je náš.
Tieto faktory predurčili základný tvar a dispozíciu domu. Už aj tak úzka hmota domu je ustúpená o ďalšie 2 metre, pre získanie kúsku súkromia v prípade že v susedstve vyrastie ďalší dom. Veľké okná sú umiestnené práve v ustúpenej hmote, čím sa dostávame 4,35 m od hranice pozemku a získavame dve terasy – južnú a východnú.
S manželkou máme minimálne nároky na priestor, ale o to vyššie nároky na kvalitu. Domček je malý a každým dňom sa stále viac presviedčame, že nám bohato stačí dokonca aj keď očakávame ďalší prírastok. Keď budeme piati a po čase budú puberťáci chcieť každý svoju izbu, môžu si dorobením dvoch stien na mieste súčasného parkovania vybudovať vlastný priestor.
Konštrukcia je kombinovaná, suterén je betónový a obytné podlažie je drevené s murovanými vnútornými priečkami a betónovými podlahami pre lepšie akumulačné schopnosti. V každej izbe je minimálne jedna stena s hlinenou omietkou najmä pre výbornú reguláciu vlhkosti, na ktorú sú drevostavby citlivé, tiež pre pohlcovanie pachov a v neposlednom rade pre úžasnú prirodzenú farbu hliny. Prírode sme sa snažili priblížiť aj zelenou extenzívnou strechou s vegetáciou lúčnych bylín, ktorá je nad celým obytným podlažím (minulý rok tam vyrástla paradajka, ktorá bola fakt chutná, i keď neviem, kde sa tam zobrala).
Fasáda prezrádza materiál nosnej konštrukcie, drevená časť má drevený obklad, betónová časť má bielosivú omietku. V interiéri pokračuje odhaľovanie konštrukcie – priznané betónové stropy v suteréne a nesmrteľná kombinácia dreva (dub a smrek v prirodzenej farbe) a bielej omietky.
Obvodový plášť je v kvalite pasívneho domu, no pasívny štandard nebolo možné dosiahnuť vďaka malej výmere a hlavne vysokému faktoru tvaru (nekompaktný tvar). Napriek tomu dom spĺňa kritéria kategórie A0 – budovy s takmer nulovou spotrebou energie, o čom svedčia aj mesačné náklady na vykurovanie, ohrev pitnej vody a chladenie = 11,50€/mesačne. V cene je zahrnuté palivo, ktoré je tvorené z 98% drevom a 2% elektrinou, ďalej elektrina potrebná na chod celého systému (obehové čerpadlá, vzduchotechnika atď.).
Počas tohtoročnej tuhej zimy sa nám podarilo spotrebovať len 2,8 m3 dreva.
Zdrojom tepla je teplovodný krb s nominálnym výkonom 8kW, ktorý zabezpečuje ohrev vykurovacej aj úžitkovej vody. Cez leto sa o teplú vodu starajú solárne panely umiestnené na južnej fasáde, ktoré zároveň slúžia ako tienenie letného slnka. O vetranie a rozvod tepla a chladu sa stará centrálna vzduchotechnická jednotka s rekuperáciou tepla. Chladenie je zabezpečené vodou zo studne, ktorá má za každých podmienok 8°C. Za cenu chodu obehového čerpadla so smiešnym príkonom dostaneme chladiaci výkon 1,5 kW, no vďaka kvalitnému zatepleniu, exteriérovému tieneniu a akumulačnej hmote v interiéri bolo chladenie zapnuté len keď som skúšal, či funguje.
Teplovodným krbom sme si urobili kotolňu z obývačky, ale tomu pohľadu na oheň dokáže konkurovať len výhľad z okna.
Text: Marek VerešFoto: Martin Gura, Marek Vereš, zdroj: archinfo.sk
Čítaj viac z kategórie: Architektúra













%20%C3%BAprava.jpg)
